Tenure: freehold
Welcome to 112 Morar Place, Irvine, a delightful three bedroom mid‑terrace villa offering inviting, flexible family accommodation. The ground floor boasts a generous lounge/diner, ideal for both relaxing and entertaining, along with a sleek modern kitchen. Upstairs, three comfortable double bedrooms provide ample space for rest and daily life. Outside, private front and rear gardens offer peaceful outdoor retreats. Positioned within walking distance of local schools, shops and amenities, this property combines practicality with appeal, a stylish, comfortable home in a convenient and sought‑after locale.
Situated in the Castlepark area of Irvine, Morar Place lies close to local shops, supermarkets, cafés and bus links. Easy walking routes to nearby primary and secondary schools make this location ideal for families. For commuting and leisure, the town centre, train station and road networks are readily accessible, offering good connectivity across North Ayrshire and beyond.
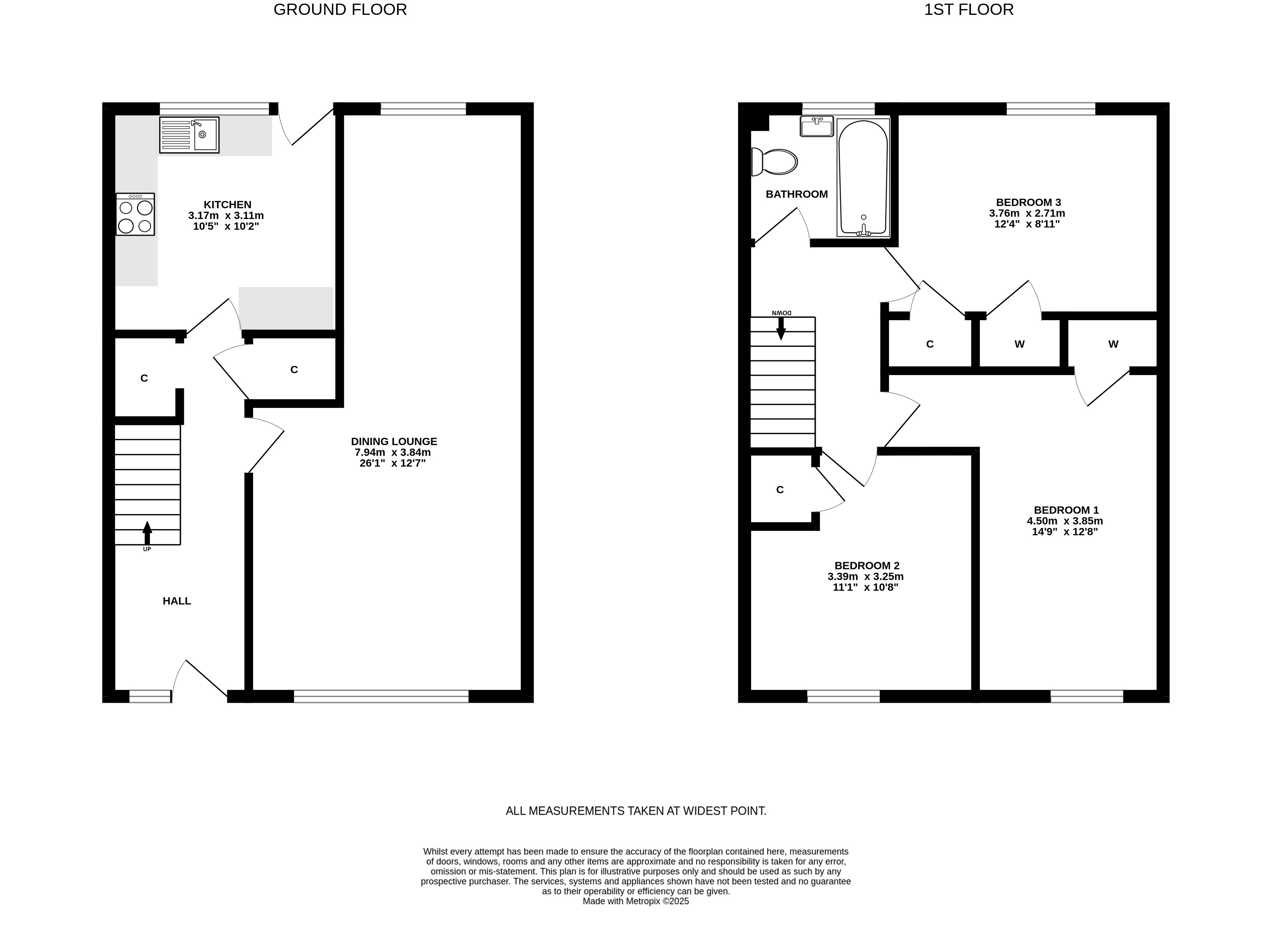
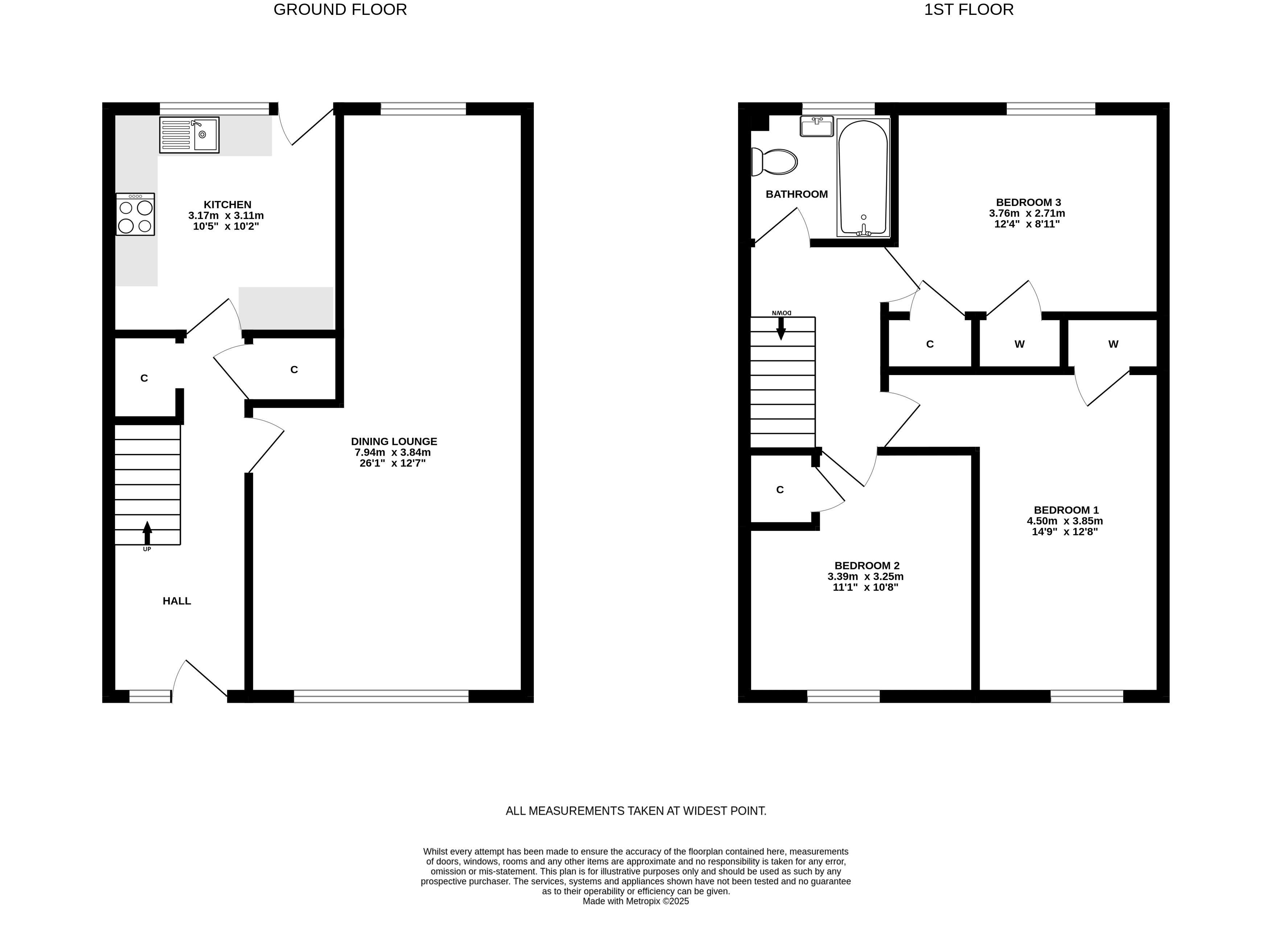
Dining Lounge
Dimensions: 26' 1" x 12' 7" (7.94m x 3.84m)
Kitchen
Dimensions: 10' 2" x 10' 5" (3.11m x 3.17m)
Hall
Dimensions: 16' 5" x 6' 4" (5.00m x 1.93m)
Bedroom 1
Dimensions: 14' 9" x 12' 8" (4.50m x 3.85m)
Bedroom 2
Dimensions: 11' 1" x 10' 8" (3.39m x 3.25m)
Bedroom 3
Dimensions: 8' 11" x 12' 4" (2.71m x 3.76m)
Bathroom
Dimensions: 5' 6" x 6' 9" (1.68m x 2.05m)
Landing
Dimensions: 8' 11" x 6' 4" (2.71m x 1.94m)
Donald Ross Residential are delighted to present to the market 32 Bruce Avenue, Dundonald. This charming three bedroom end terrace villa offers well-proportioned accommodation throughout, making it an ideal home for a wide variety of purchasers. The property has been beautifully decorated by the current owners, featuring a welcoming lounge, kitchen, three bedrooms and a family bathroom. Externally, there is the benefit of a private rear garden, offering space for relaxation or outdoor entertaining. Positioned within a popular residential area of Dundonald, this property is sure to appeal to first-time buyers, young families and those seeking a well-located home.Dundonald is a vibrant village offering an excellent range of local amenities including shops, cafes and schools. The area is well connected for commuters, with convenient road links to Kilmarnock, Irvine, Troon and Ayr, while the M77 provides direct access to Glasgow. Nearby public transport options ensure easy travel throughout Ayrshire and beyond. With Dundonald Castle, local parks and countryside walks on the doorstep, this location offers a great balance of community living and accessibility.LoungeDimensions: 13' 9" x 13' 0" (4.20m x 3.95m)KitchenDimensions: 7' 11" x 12' 10" (2.41m x 3.90m)BathroomDimensions: 9' 7" x 6' 4" (2.91m x 1.94m)HallDimensions: 12' 4" x 6' 6" (3.76m x 1.97m)Bedroom 1Dimensions: 8' 11" x 16' 7" (2.73m x 5.06m)Bedroom 2Dimensions: 12' 11" x 9' 1" (3.94m x 2.78m)Bedroom 3Dimensions: 9' 7" x 10' 6" (2.91m x 3.20m)