Tenure: freehold
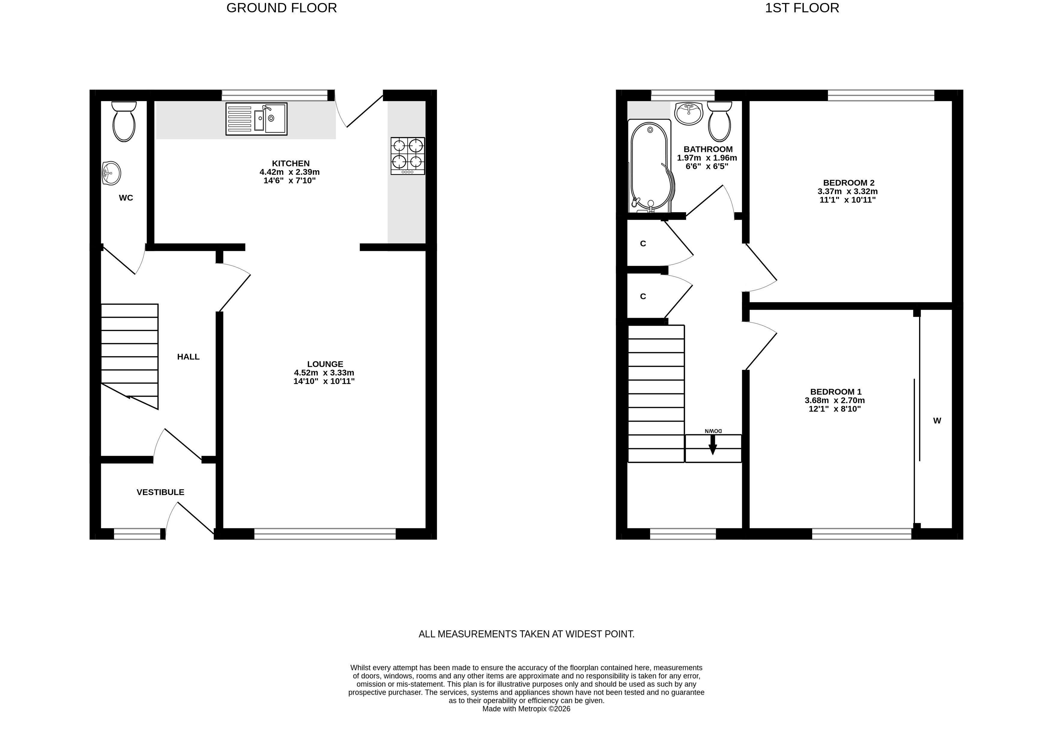
This attractive two-bedroom end-terrace house offers bright, well-proportioned accommodation over two levels and is ideally suited to first-time buyers and downsizers. The ground floor comprises a welcoming vestibule and hall, spacious lounge, modern fitted kitchen, and a convenient WC. Upstairs, there are two generous double bedrooms and a bathroom with bath and shower over. Externally, the property benefits from a driveway providing off-street parking for up to three vehicles and a professionally landscaped, west-facing rear garden, ideal for afternoon and evening sun. Further benefits include gas central heating and double glazing.
Outdale Avenue is a popular residential address within Prestwick, conveniently positioned for local shops, supermarkets, schooling, and public transport. Prestwick town centre, rail links, and the A77 are all easily accessible, making this an ideal location for commuters and local buyers alike.
Vestibule
Dimensions: 3' 7" x 6' 3" (1.09m x 1.90m)
Hall
Dimensions: 11' 0" x 6' 6" (3.35m x 1.97m)
Lounge
Dimensions: 14' 10" x 10' 11" (4.52m x 3.33m)
Dining Kitchen
Dimensions: 7' 10" x 14' 6" (2.39m x 4.42m)
WC
Dimensions: 7' 10" x 2' 11" (2.40m x 0.90m)
Landing
Dimensions: 16' 5" x 6' 6" (5.01m x 1.98m)
Bedroom 1
Dimensions: 12' 1" x 8' 10" (3.68m x 2.70m)
Bedroom 2
Dimensions: 10' 11" x 11' 1" (3.32m x 3.37m)
Bathroom
Dimensions: 6' 5" x 6' 6" (1.96m x 1.97m)
Located within a popular and rarely available pocket of Cumnock, 13 Forbes Avenue offers spacious and flexible accommodation across two levels. The ground floor comprises a bright lounge, large kitchen and a substantial conservatory overlooking the impressive rear garden, along with a convenient downstairs bathroom. Upstairs, three sizeable double bedrooms provide excellent space for family living. Externally, the monoblocked driveway accommodates multiple cars and is complemented by a timber garage and a versatile summerhouse ideal for entertaining, relaxation or use as a home office or gym. Well placed for local schools, amenities and commuter links, this is an excellent opportunity to acquire a stunning family home.Forbes Avenue is set within a well established and sought after residential area of Cumnock, offering convenient access to shops, supermarkets, leisure facilities and well regarded schools. The town centre is close by, while road links provide easy travel to Ayr, Kilmarnock and wider Ayrshire. Local parks, walking routes and community amenities enhance the appeal for families and commuters alike. The combination of peaceful surroundings and proximity to everyday facilities makes this a desirable and practical location.LoungeDimensions: 11' 2" x 16' 4" (3.40m x 4.97m)KitchenDimensions: 9' 3" x 16' 4" (2.83m x 4.97m)ConservatoryDimensions: 12' 10" x 13' 4" (3.90m x 4.07m)Shower RoomDimensions: 5' 6" x 6' 9" (1.68m x 2.07m)HallDimensions: 15' 0" x 6' 11" (4.58m x 2.11m)LandingDimensions: 13' 1" x 10' 5" (3.98m x 3.17m)Bedroom 1Dimensions: 10' 1" x 12' 3" (3.08m x 3.74m)Bedroom 2Dimensions: 10' 8" x 12' 3" (3.25m x 3.74m)Bedroom 3Dimensions: 10' 6" x 11' 0" (3.20m x 3.35m)