Tenure: freehold
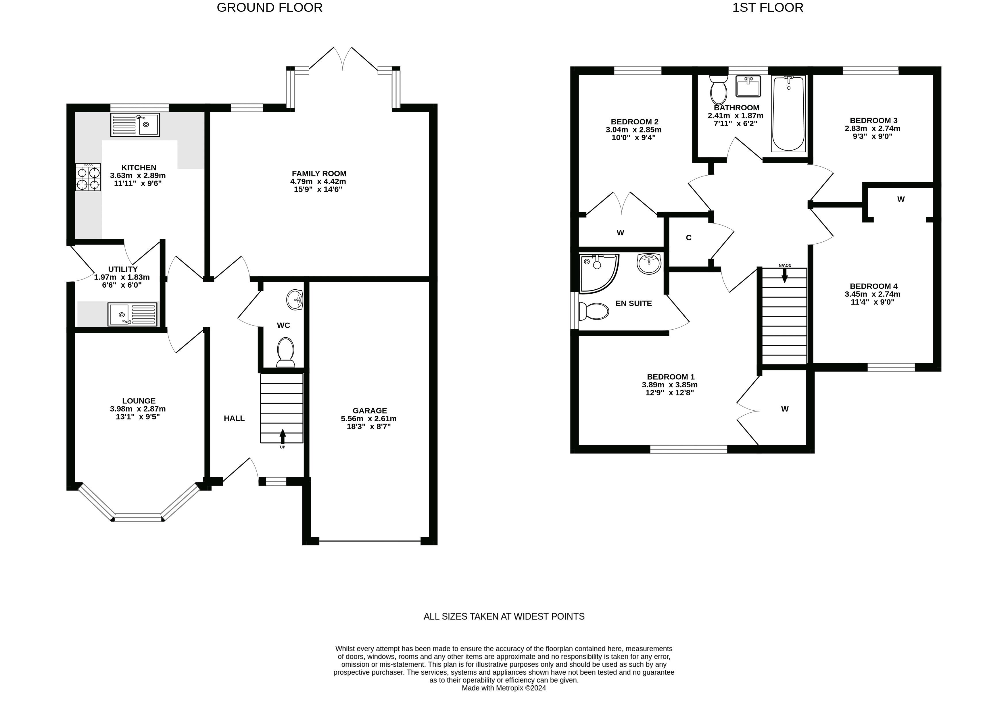
Nestled in a sought-after Saltcoats residential area, this four-bedroom detached villa offers generous family living across two light-filled floors. The ground level features a welcoming hallway, spacious lounge, modern fitted kitchen, convenient utility room, and a versatile family room with direct access to the fully enclosed rear garden. Upstairs, discover four well‑proportioned bedrooms, including a master with ensuite, plus a family bathroom. Outside benefits include an integral garage and driveway, providing ample parking and storage. With elegant interiors, family‑friendly layout and outdoor appeal, this home promises comfort, privacy and convenience in a desirable coastal setting.
2 Caaf Water Place is located in Saltcoats, a charming coastal town on Scotland’s west coast, part of the conurbation known as the “Three Towns” alongside Ardrossan and Stevenston. The neighbourhood is characterised by predominantly detached housing and family households, hinting at affluence and a strong suburban appeal. Residents benefit from excellent transport links including the nearby Ardrossan South Beach railway station (~0.6 miles away), plus easy access to local primary schools—such as St Anthony’s just 290 yards away—and Ardrossan Academy & St Matthews Academy for secondary education, roughly 640 yards distant.
Lounge
Dimensions: 13' 1" x 9' 5" (3.99m x 2.87m)
Family Room
Dimensions: 14' 6" x 15' 9" (4.42m x 4.80m)
Kitchen
Dimensions: 11' 11" x 9' 6" (3.63m x 2.90m)
Utility room
Dimensions: 6' 0" x 6' 6" (1.83m x 1.98m)
WC
Dimensions: 6' 2" x 2' 10" (1.88m x 0.86m)
Garage
Dimensions: 18' 3" x 8' 7" (5.56m x 2.62m)
Bedroom 1
Dimensions: 12' 8" x 12' 9" (3.86m x 3.89m)
En suite
Dimensions: 5' 10" x 6' 1" (1.78m x 1.85m)
Bedroom 2
Dimensions: 10' 0" x 9' 4" (3.05m x 2.84m)
Bedroom 3
Dimensions: 9' 3" x 9' 0" (2.82m x 2.74m)
Bedroom 4
Dimensions: 11' 4" x 9' 0" (3.45m x 2.74m)
Bathroom
Dimensions: 6' 2" x 7' 11" (1.88m x 2.41m)
Set on a generous corner plot at 34 Ladyacre Wynd, Irvine, this well-appointed three-bed semi-detached villa offers stylish family living. A welcoming lounge at the front leads through to a modern dining kitchen at the rear with patio doors opening to the garden. Upstairs there are three spacious bedrooms, one with en-suite, alongside a contemporary family bathroom and separate WC. A large garage has been added and the wide driveway provides ample parking for several cars. Located within walking distance of a local primary school, this home combines convenience, modern comfort and excellent scope for family life.Situated in the sought-after residential area of 34 Ladyacre Wynd, Irvine, this home enjoys a prime family-friendly position. Close to local schooling, amenities and transport links, the property is within easy walking distance of a primary school and offers easy access to the town centre for shopping, leisure and public transport.LoungeDimensions: 15' 3" x 11' 11" (4.65m x 3.64m)Dining KitchenDimensions: 9' 6" x 15' 5" (2.89m x 4.70m)WCDimensions: 6' 9" x 3' 8" (2.05m x 1.12m)HallDimensions: 11' 2" x 4' 0" (3.40m x 1.21m)Bedroom 1Dimensions: 10' 5" x 9' 9" (3.17m x 2.96m)En SuiteDimensions: 7' 11" x 5' 7" (2.41m x 1.71m)Bedroom 2Dimensions: 10' 11" x 8' 1" (3.32m x 2.46m)Bedroom 3Dimensions: 7' 5" x 7' 2" (2.26m x 2.19m)BathroomDimensions: 6' 8" x 8' 1" (2.02m x 2.47m)LandingDimensions: 8' 5" x 7' 2" (2.57m x 2.19m)Garage / Utility RoomDimensions: 25' 6" x 8' 10" (7.76m x 2.68m)