Tenure: freehold
***CLOSING DATE - THURSDAY 2ND OCTOBER AT 11AM***
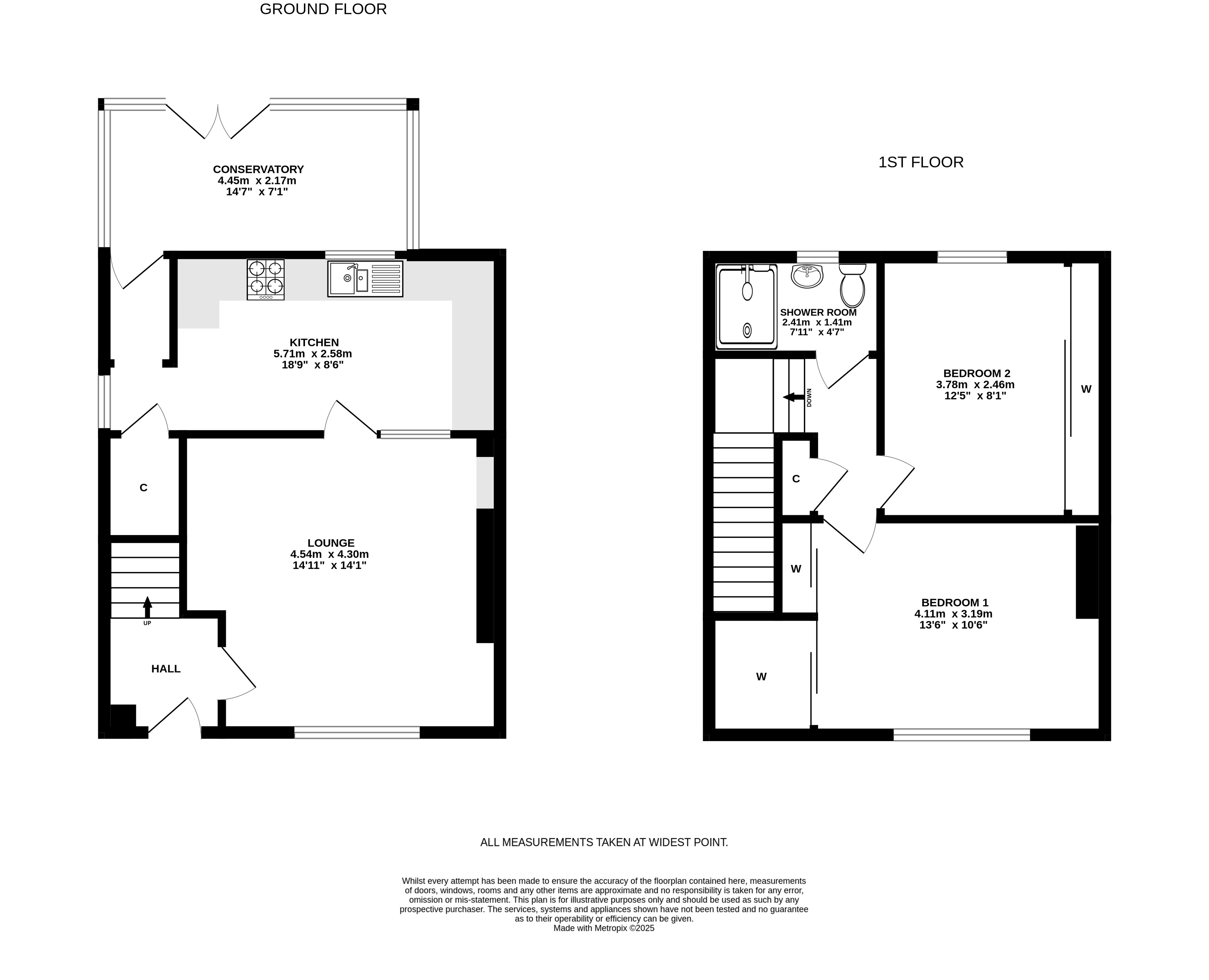
This appealing two bedroom semi-detached villa is set on a generous corner plot in a popular residential area of Kilmarnock. Inside, the home offers a bright lounge, spacious kitchen, and a family bathroom, along with two well-proportioned bedrooms. Outside, there is an expansive driveway providing ample off-street parking, plus surrounding front, side and rear gardens that enhance the property’s sense of space. Ideally suited to first-time buyers, downsizers, or investors, this property combines a great location with plenty of potential to create a stylish home.
Annanhill Avenue is located within a sought-after residential pocket of Kilmarnock, offering excellent access to local shops, schools, and amenities. The property is well placed for transport links, with nearby road connections to the A77 and M77 for easy commuting to Glasgow and Ayrshire’s coastal towns. Kilmarnock town centre is only a short distance away, offering supermarkets, restaurants, leisure facilities, and rail services, making this an ideal spot for buyers seeking both convenience and connectivity.
Lounge
Dimensions: 14' 1" x 14' 11" (4.30m x 4.54m)
Kitchen
Dimensions: 8' 6" x 18' 9" (2.58m x 5.71m)
Conservatory
Dimensions: 7' 1" x 14' 7" (2.17m x 4.45m)
Hall
Dimensions: 5' 7" x 5' 7" (1.70m x 1.69m)
Bedroom 1
Dimensions: 10' 6" x 13' 6" (3.19m x 4.11m)
Bedroom 2
Dimensions: 12' 5" x 8' 1" (3.78m x 2.46m)
Shower Room
Dimensions: 4' 8" x 7' 11" (1.41m x 2.41m)
This property is marketed by
Donald Ross Residential Kilmarnock
Located within a well established residential area of Mauchline, 6 Mossgiel Avenue is a two-bedroom end terrace property offering an excellent opportunity for first-time buyers, young families or downsizers alike. The home features a bright lounge, a fitted kitchen with direct access to the rear garden, two generously proportioned bedrooms and a modern family bathroom. Externally, the property enjoys a private driveway, an enclosed rear garden perfect for outdoor enjoyment, and a large timber shed offering fantastic storage or workshop potential.Mossgiel Avenue sits within a popular pocket of Mauchline, a historic Ayrshire town with a strong sense of community. The property benefits from close proximity to local shops, schools and leisure facilities, while excellent transport links provide easy access to Kilmarnock, Ayr and beyond. The M77 motorway is also nearby, offering a straightforward commute to Glasgow and the central belt. Surrounded by rolling Ayrshire countryside, Mauchline is perfectly placed for both rural living and modern convenience.LoungeDimensions: 14' 2" x 13' 4" (4.32m x 4.06m)KitchenDimensions: 8' 4" x 9' 7" (2.53m x 2.91m)HallDimensions: 20' 6" x 6' 10" (6.24m x 2.09m)LandingDimensions: 13' 8" x 6' 5" (4.17m x 1.96m)Bedroom 1Dimensions: 12' 2" x 13' 7" (3.71m x 4.15m)Bedroom 2Dimensions: 10' 7" x 13' 8" (3.23m x 4.16m)BathroomDimensions: 8' 9" x 4' 9" (2.67m x 1.46m)