Tenure: freehold
Set within a generous plot, this beautifully modernised detached bungalow combines elegant design with versatile living space. The ground floor hosts a bright, welcoming lounge, a modern kitchen with separate dining room and two generously proportioned double bedrooms alongside a sleek family bathroom. Outside, a large driveway leads to gated access at the rear, where you’ll find a detached garage and an impressive summerhouse, ideal for entertaining or relaxing. Immaculately presented inside and out, this home delivers style, practicality, and generous outdoor space in equal measure.
Knockinlaw Road is set within a popular residential area of Kilmarnock, offering a peaceful residential setting while remaining close to the town centre’s amenities. Shops, supermarkets, cafes, and well-regarded schools are all within easy reach, while excellent transport links provide swift access to Glasgow and surrounding areas via road and rail. The property is also well placed for local parks, leisure facilities, and scenic countryside walks. This sought-after location perfectly balances convenience and lifestyle, making it ideal for those seeking a high-quality home with generous space in a well-connected yet tranquil setting.
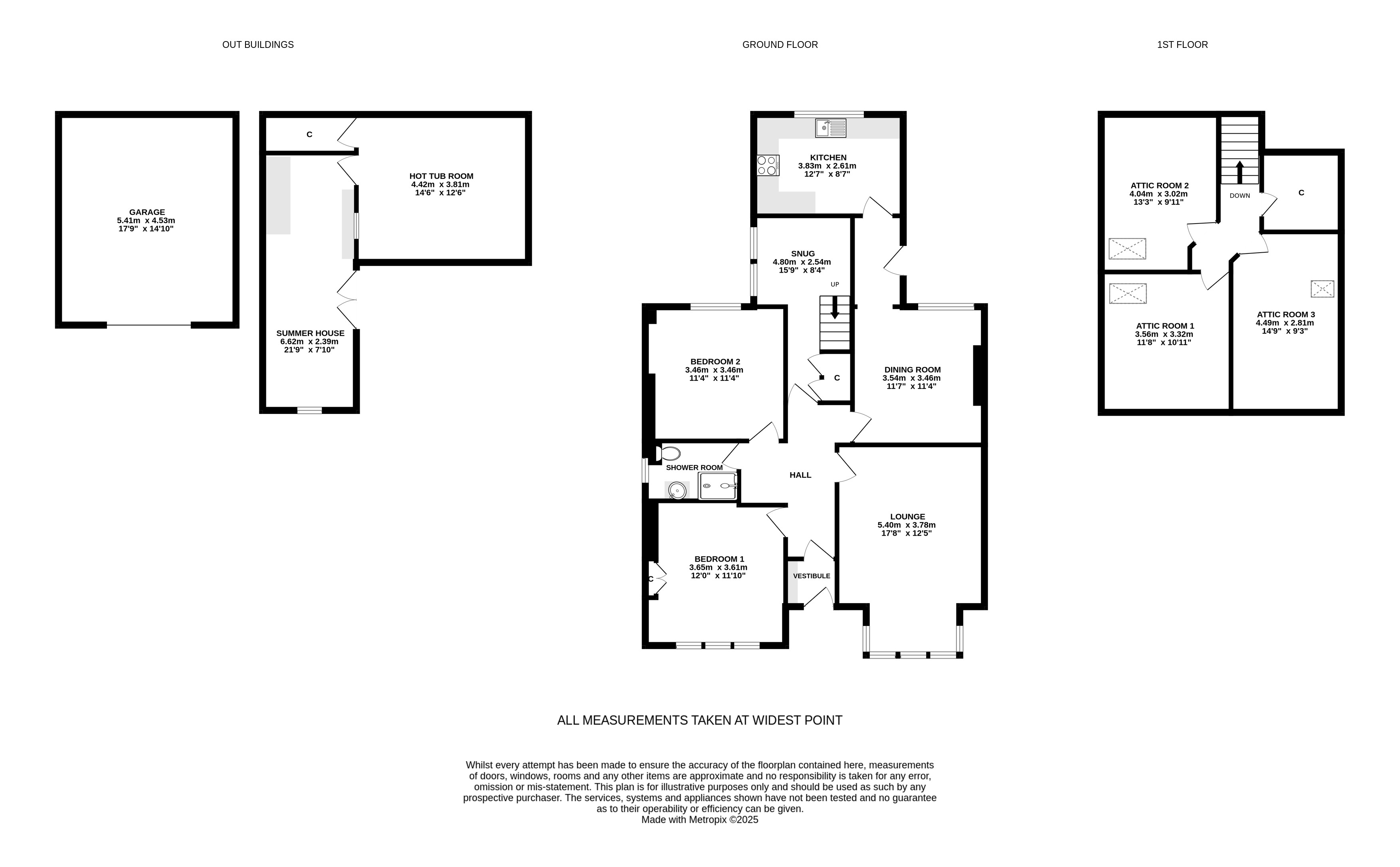
Lounge
Dimensions: 17' 9" x 12' 5" (5.40m x 3.78m)
Dining Room
Dimensions: 11' 7" x 11' 4" (3.54m x 3.46m)
Kitchen
Dimensions: 8' 7" x 12' 7" (2.61m x 3.83m)
Hall
Dimensions: 13' 2" x 10' 4" (4.01m x 3.16m)
Bedroom 1
Dimensions: 11' 10" x 12' 0" (3.61m x 3.65m)
Bedroom 2
Dimensions: 11' 4" x 11' 4" (3.46m x 3.46m)
Shower Room
Dimensions: 5' 2" x 7' 5" (1.57m x 2.25m)
Snug
Dimensions: 15' 9" x 8' 4" (4.80m x 2.54m)
Vestibule
Dimensions: 4' 0" x 4' 4" (1.22m x 1.32m)
Attic Room 1
Dimensions: 11' 8" x 10' 11" (3.56m x 3.32m)
Attic Room 2
Dimensions: 13' 3" x 9' 11" (4.04m x 3.02m)
Attic Room 3
Dimensions: 14' 9" x 9' 3" (4.49m x 2.81m)
Summer House
Dimensions: 21' 9" x 7' 10" (6.62m x 2.39m)
Hot Tub Room
Dimensions: 12' 6" x 14' 6" (3.81m x 4.42m)
This property is marketed by
Donald Ross Residential Kilmarnock
***CLOSING DATE THURSDAY 12TH FEBRUARY AT 11AM***1 Bankhead Place is a well presented and extended three bedroom detached bungalow, quietly positioned within a sought-after cul-de-sac in a popular residential area of Stewarton. Refurbished by the current owners, the property offers generous, well balanced accommodation all on one level. The bright and spacious lounge provides a comfortable main living space, while the large open plan dining kitchen forms the heart of the home and is ideal for modern family living. Three well proportioned bedrooms are complemented by a master en-suite and a spacious family bathroom. Externally, the property benefits from front and rear gardens, a double driveway and a double garage.Bankhead Place enjoys a peaceful cul-de-sac setting within a popular residential area of Stewarton. The town offers a range of local amenities including shops, cafes, primary and secondary schooling, along with a train station providing regular services to Glasgow and surrounding areas. Road links via the A77 and M77 allow for convenient commuting throughout Ayrshire and beyond. Stewarton is well regarded for its community feel and access to surrounding countryside, making it an attractive location for families and those seeking a quieter lifestyle while remaining well connected.LoungeDimensions: 21' 6" x 15' 10" (6.56m x 4.82m)KitchenDimensions: 11' 8" x 14' 5" (3.56m x 4.40m)Dining RoomDimensions: 15' 10" x 12' 10" (4.83m x 3.91m)Utility RoomDimensions: 11' 7" x 6' 6" (3.54m x 1.99m)HallDimensions: 20' 8" x 20' 0" (6.29m x 6.10m)Bedroom 1Dimensions: 24' 3" x 14' 1" (7.38m x 4.30m)En suiteDimensions: 7' 3" x 7' 0" (2.20m x 2.13m)Bedroom 2Dimensions: 9' 10" x 10' 1" (3.00m x 3.08m)Bedroom 3 / OfficeDimensions: 9' 11" x 8' 8" (3.01m x 2.63m)BathroomDimensions: 7' 4" x 7' 10" (2.24m x 2.40m)