Tenure: freehold
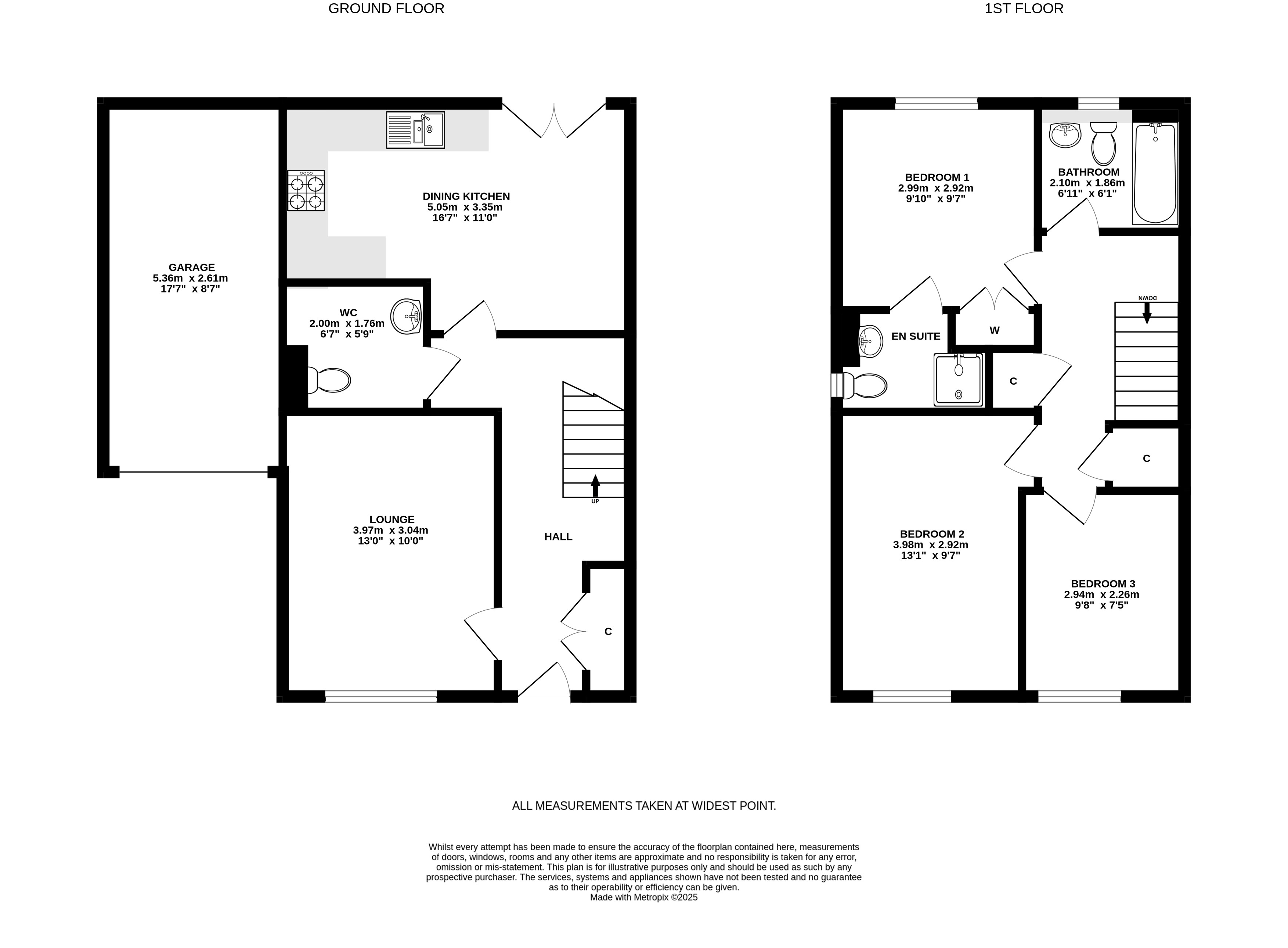
Welcome to 23 Garrett Avenue, a charming three bedroom semi-detached villa in Saltcoats, offering spacious family living over two levels. Downstairs, you’ll find a bright dining kitchen perfect for home entertaining, good sized lounge and a handy WC. Upstairs, there’s a generous master bedroom with ensuite, plus two further well-proportioned bedrooms. Outside boasts a driveway and garage, large rear garden for outdoor enjoyment, and a neat front garden. Located within walking distance of local schools, amenities, and transport links, this home offers an ideal blend of comfort, convenience and potential.
23 Garrett Avenue sits in a well-established residential area of Saltcoats (KA21), close to primary & secondary schools, local shops, transport links and community amenities. Saltcoats is part of the “Three Towns” conurbation in North Ayrshire, offering coastal charm, good public transport and easy access to nearby towns.
Lounge
Dimensions: 13' 0" x 10' 0" (3.97m x 3.04m)
Dining Kitchen
Dimensions: 11' 0" x 16' 7" (3.35m x 5.05m)
Hall
Dimensions: 17' 3" x 9' 10" (5.26m x 3.00m)
WC
Dimensions: 5' 9" x 6' 7" (1.76m x 2.00m)
Bedroom 1
Dimensions: 9' 10" x 9' 7" (2.99m x 2.92m)
En Suite
Dimensions: 4' 9" x 7' 3" (1.45m x 2.20m)
Bedroom 2
Dimensions: 13' 1" x 9' 7" (3.98m x 2.92m)
Bedroom 3
Dimensions: 9' 8" x 7' 5" (2.94m x 2.26m)
Bathroom
Dimensions: 6' 1" x 6' 11" (1.86m x 2.10m)
Landing
Dimensions: 12' 4" x 7' 0" (3.76m x 2.13m)
***CLOSING DATE WEDNESDAY 12TH OF NOVEMBER AT 3PM***A beautifully presented three bedroom semi-detached family home on 16 Duncan Drive, Irvine, offering flexible living across two levels. Downstairs you'll find a convenient bedroom and a stylish open‐plan dual aspect lounge with dining area and patio door opening to the garden, plus a modern kitchen. Upstairs features two further bedrooms and a contemporary bathroom. Set on a large corner plot, this home enjoys expansive gardens and a multi-car driveway. Ideal for families, it’s within walking distance of the town centre and local schools, combining modern comfort with a superb location.Situated in the popular residential area of Duncan Drive in Irvine, this home offers excellent access to local amenities including schooling, shops and transport links. The town centre is within easy walking distance and the large corner plot provides space and privacy in a family-friendly neighbourhood.LoungeDimensions: 17' 11" x 11' 5" (5.45m x 3.49m)KitchenDimensions: 8' 3" x 14' 7" (2.51m x 4.45m)Dining Room / Bedroom 3Dimensions: 12' 7" x 9' 1" (3.83m x 2.78m)HallDimensions: 8' 3" x 6' 0" (2.52m x 1.83m)Bedroom 1Dimensions: 15' 5" x 11' 5" (4.69m x 3.48m)Bedroom 2Dimensions: 14' 6" x 10' 11" (4.43m x 3.33m)BathroomDimensions: 6' 7" x 6' 7" (2.00m x 2.01m)LandingDimensions: 6' 8" x 7' 9" (2.02m x 2.36m)