Tenure: freehold
Donald Ross Residential are delighted to present to the market 27 Boyd Orr Crescent, Kilmaurs. This well presented two bedroom semi-detached villa offers attractive accommodation ideal for a range of purchasers. The property comprises a bright lounge, modern kitchen with space to dine, two well proportioned bedrooms and a modern family shower room. Externally, the home is enhanced by a substantial private rear garden, perfect for outdoor enjoyment, along with a driveway to the front providing off-street parking. Situated within a sought-after residential area, this home is well placed for local amenities, schooling and excellent transport links.
Kilmaurs is a charming village offering a blend of rural character and modern convenience. The property is well positioned close to local shops, amenities and highly regarded schooling. Kilmaurs train station provides regular services to Glasgow, while the nearby M77 motorway ensures swift access to the Central Belt. The surrounding Ayrshire countryside offers scenic walks, golf courses and outdoor pursuits, making this location highly appealing to both commuters and families alike.
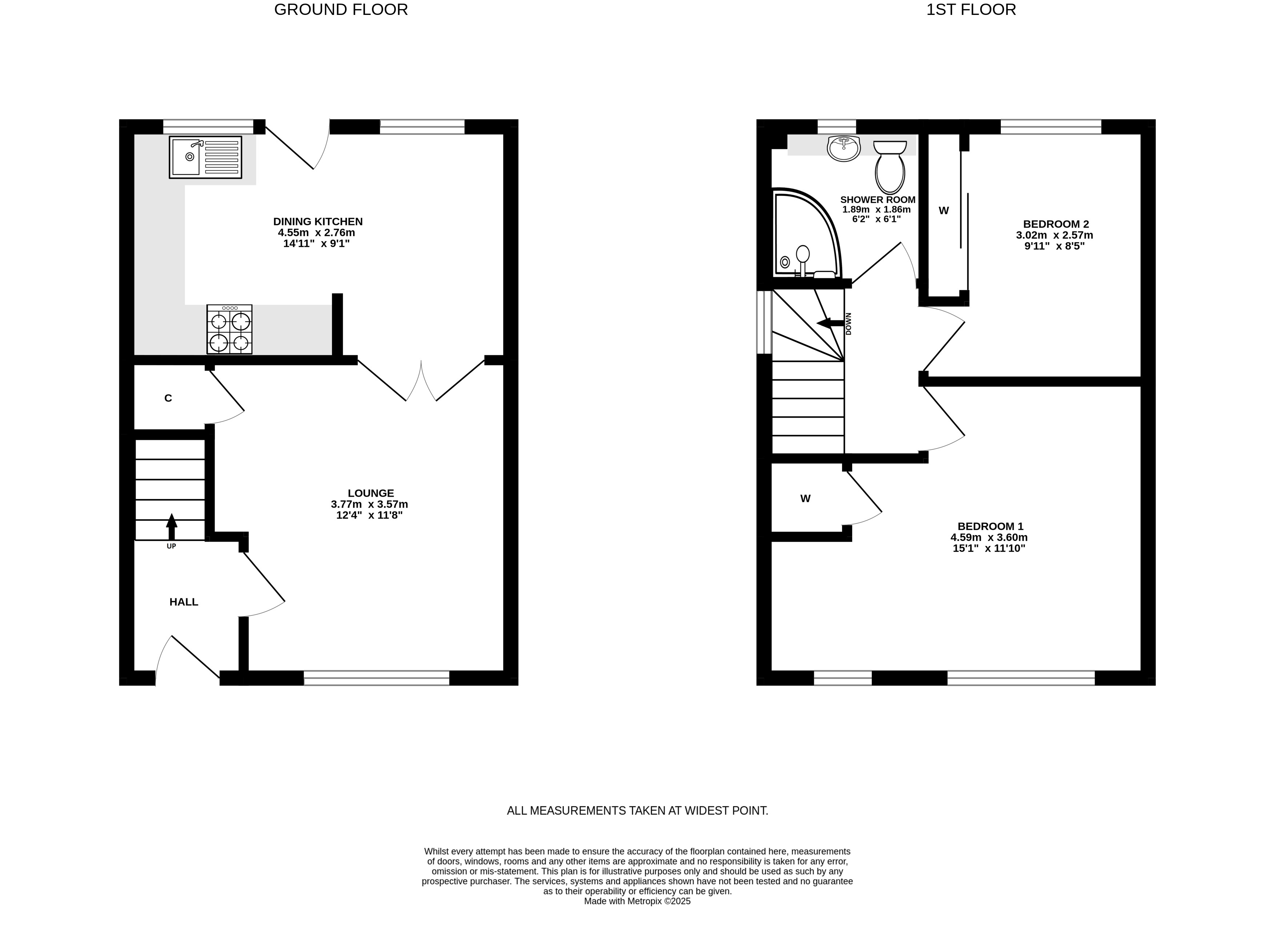
Lounge
Dimensions: 12' 4" x 11' 9" (3.77m x 3.57m)
Dining Kitchen
Dimensions: 9' 1" x 14' 11" (2.76m x 4.55m)
Hall
Dimensions: 5' 7" x 4' 3" (1.69m x 1.30m)
Landing
Dimensions: 6' 9" x 6' 4" (2.07m x 1.94m)
Bedroom 1
Dimensions: 11' 10" x 15' 1" (3.60m x 4.59m)
Bedroom 2
Dimensions: 9' 11" x 8' 5" (3.02m x 2.57m)
Shower Room
Dimensions: 6' 1" x 6' 2" (1.86m x 1.89m)
This property is marketed by
Donald Ross Residential Kilmarnock
***Unexpectedly Back on the Market***Donald Ross present to the market 121 Corsehill, Kilwinning. This beautifully presented three-bedroom semi-detached villa offering spacious, tastefully decorated rooms throughout. A bright lounge leads to a well-appointed kitchen-diner, flowing naturally to the generous rear garden—perfect for outdoor entertaining or family activities. Mature front and rear gardens provide privacy, while the large multi-car driveway ensures excellent off-street parking. Ideally located within walking distance to Kilwinning town centre, local primary and secondary schools (including Corsehill Primary and Kilwinning Academy and Ayrshire College’s Kilwinning campus, the home offers both convenience and charm. An ideal family villa in a sought-after neighbourhood.Donald Ross present to the market 121 Corsehill, Kilwinning. This beautifully presented three-bedroom semi-detached villa offering spacious, tastefully decorated rooms throughout.LoungeDimensions: 15' 5" x 12' 2" (4.71m x 3.71m)Dining KitchenDimensions: 8' 4" x 13' 5" (2.53m x 4.10m)Utility RoomDimensions: 7' 7" x 8' 4" (2.32m x 2.53m)BathroomDimensions: 8' 2" x 5' 10" (2.50m x 1.78m)HallDimensions: 15' 5" x 6' 11" (4.70m x 2.12m)Bedroom 1Dimensions: 9' 8" x 16' 3" (2.95m x 4.96m)Bedroom 2Dimensions: 14' 2" x 9' 3" (4.33m x 2.82m)Bedroom 3Dimensions: 10' 8" x 10' 5" (3.26m x 3.17m)LandingDimensions: 3' 2" x 9' 2" (0.97m x 2.80m)