Tenure: freehold
Nestled on a generous plot, this detached two‑bedroom bungalow presents single‑level living with effortless style. Its inviting layout includes a spacious lounge and separate dining room—ideal for both relaxation and entertaining. Two well‑proportioned bedrooms provide comfortable private spaces. Outside, a sizable driveway with multi‑car parking leads to a garage, ensuring excellent parking convenience. The mature, private garden offers a peaceful outdoor retreat for gardening or leisure. Located in sought‑after Kilwinning, this home combines quiet residential charm with easy access to local amenities, schools, and transport links—making it a practical and appealing choice for downsizers or families alike.
Kilwinning is a historic town in North Ayrshire, Scotland, located approximately 21 miles southwest of Glasgow on the banks of the River Garnock, with Irvine to the south and Stevenston to the west. At its heart lies Kilwinning Abbey, whose ancient tower is a notable local landmark. The town offers solid commuter connections via the A78 and the Ayrshire Coast Line rail, plus a welcoming, community‑focused atmosphere. Just south sits Eglinton Country Park—a vast 400‑hectare green space with castle ruins, trails, play zones, and nature activities
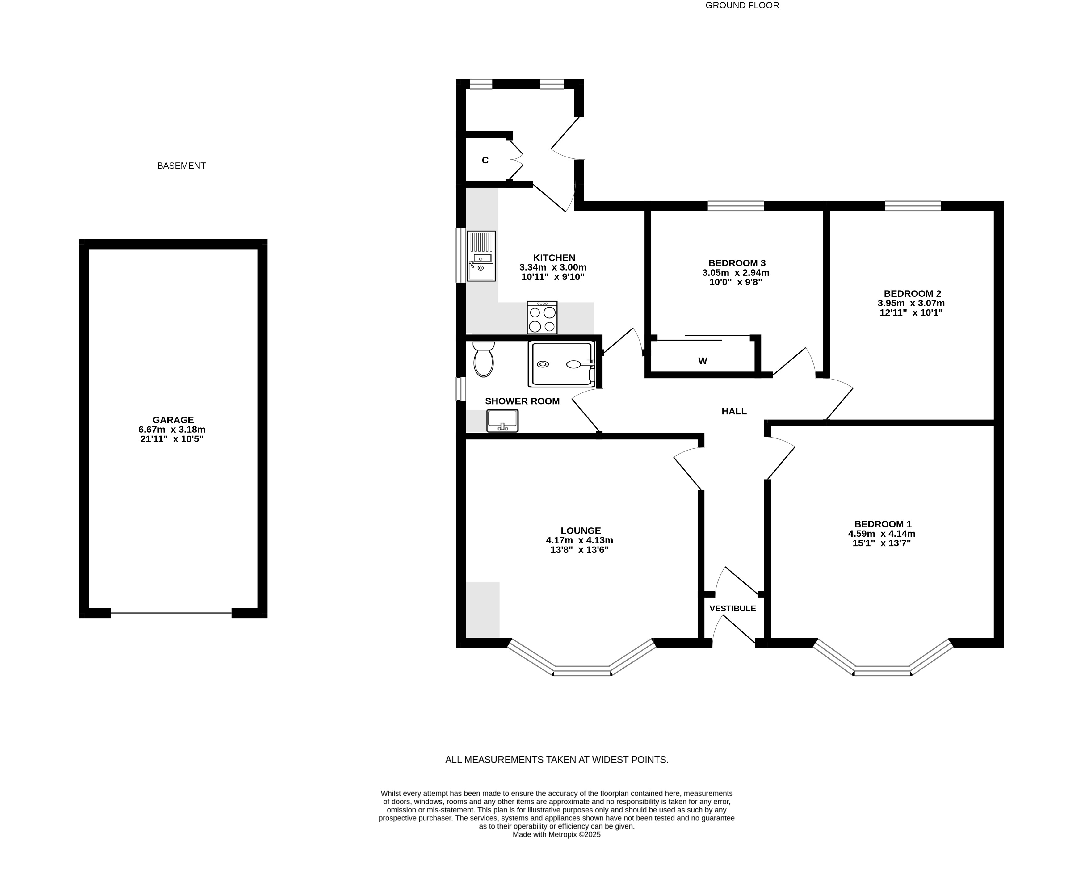
Lounge
Dimensions: 13' 8" x 13' 7" (4.17m x 4.13m)
Family Room
Dimensions: 15' 1" x 13' 7" (4.59m x 4.14m)
Kitchen
Dimensions: 9' 10" x 10' 11" (3.00m x 3.34m)
Bedroom 1
Dimensions: 13' 0" x 10' 1" (3.95m x 3.07m)
Bedroom 2
Dimensions: 9' 8" x 10' 0" (2.94m x 3.05m)
Shower Room
Dimensions: 5' 9" x 7' 4" (1.76m x 2.24m)
Hall
Dimensions: 13' 1" x 13' 5" (4.00m x 4.09m)
Vestibule
Dimensions: 2' 10" x 3' 10" (0.86m x 1.18m)
Rear Vestibule
Dimensions: 5' 10" x 6' 9" (1.79m x 2.05m)
Garage
Dimensions: 21' 11" x 10' 5" (6.67m x 3.18m)
Donald Ross Residential are delighted to present to the market this charming and well presented two bedroom semi detached bungalow, located within a quiet and sought after residential area. This lovely home offers a modern lifestyle in a peaceful setting, ideal for downsizers or first time buyers. The property boasts a spacious lounge, a stylish modern fitted kitchen with adjoining utility room, and a bright family bathroom. Two generous double bedrooms offer excellent storage, while the home is complemented by beautifully maintained front and rear gardens, perfect for outdoor entertaining. A delightful summerhouse adds a touch of charm, ideal for relaxation or hobbies. The property also benefits from a private driveway and detached garage, providing ample off street parking.Located on the desirable Bank Street in Irvine, this property enjoys a quiet residential setting while being within easy reach of local amenities, shops, schools, and excellent transport links. Irvine town centre, beach park, and train station are just a short distance away, offering convenient access to Glasgow and surrounding areas. This sought after location combines peaceful living with everyday convenience , ideal for commuters, families, and retirees alike.LoungeDimensions: 13' 5" x 13' 4" (4.10m x 4.06m)Dining KitchenDimensions: 27' 4" x 10' 2" (8.32m x 3.09m)Bedroom 1Dimensions: 12' 0" x 11' 0" (3.66m x 3.36m)Bedroom 2Dimensions: 11' 6" x 12' 2" (3.51m x 3.70m)BathroomDimensions: 7' 5" x 7' 4" (2.25m x 2.24m)Utility RoomDimensions: 5' 8" x 7' 4" (1.73m x 2.24m)HallDimensions: 12' 3" x 7' 5" (3.74m x 2.25m)VestibuleDimensions: 3' 1" x 4' 10" (0.95m x 1.47m)GarageDimensions: 16' 6" x 9' 7" (5.02m x 2.91m)ShedDimensions: 6' 9" x 9' 7" (2.07m x 2.91m)