Tenure: freehold
Forming part of the prestigious Dalblair Court development by McCarthy & Stone, this spacious two-bedroom first-floor apartment offers secure, low-maintenance living in the heart of Ayr. Designed for residents aged 60 and over, the property features a bright lounge/dining room with bay window, modern fitted kitchen, two double bedrooms, one with fitted wardrobes and a contemporary shower room. Dalblair Court provides a residents’ lounge, guest suite, lift access, landscaped gardens and a House Manager with 24-hour Careline support, creating a comfortable, friendly and convenient environment just a short stroll from Ayr’s shops, cafés, transport links and seafront.
Dalblair Court enjoys a prime location moments from Ayr town centre, allowing easy access to shops, cafés, medical facilities and public transport. Ayr train station, the seafront and promenade are all within walking distance, offering the ideal balance of independence, convenience and coastal lifestyle.
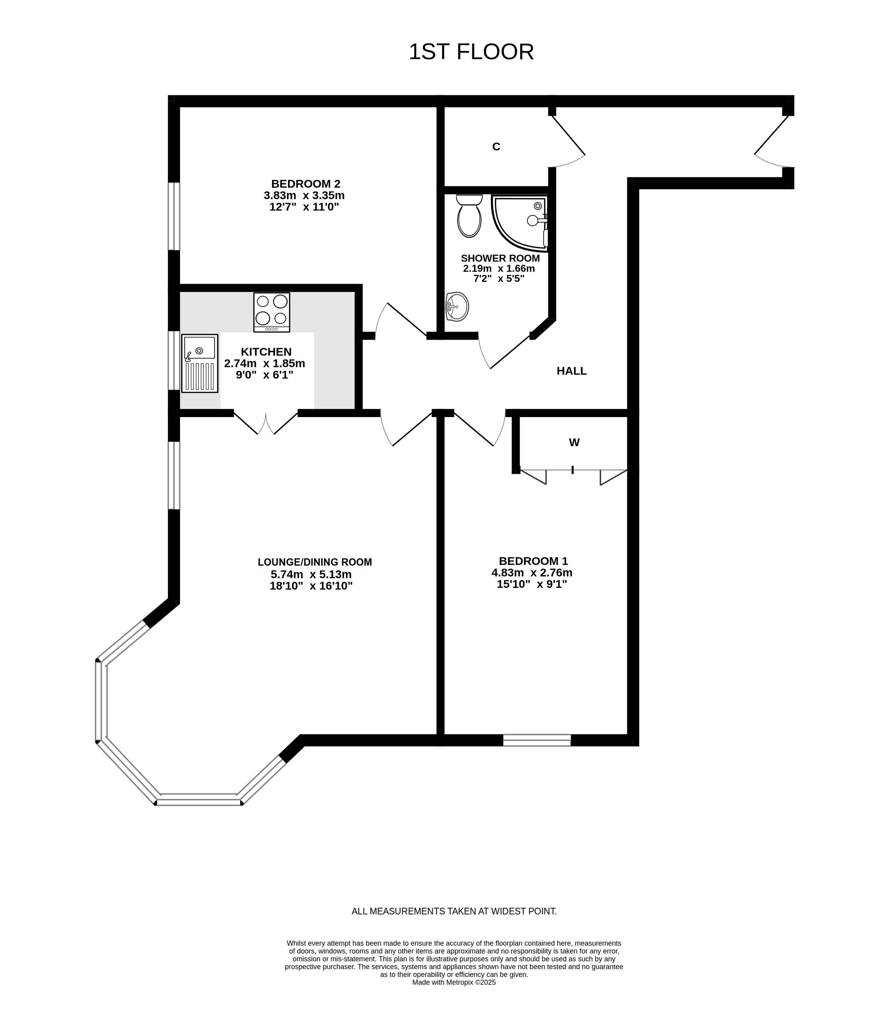
Lounge
Dimensions: 18' 10" x 16' 10" (5.74m x 5.13m)
Kitchen
Dimensions: 6' 1" x 9' 0" (1.85m x 2.74m)
Bedroom 1
Dimensions: 15' 10" x 9' 1" (4.83m x 2.76m)
Bedroom 2
Dimensions: 11' 0" x 12' 7" (3.35m x 3.83m)
Shower Room
Dimensions: 7' 2" x 5' 5" (2.19m x 1.66m)
Hall
Dimensions: 15' 2" x 20' 10" (4.62m x 6.36m)
A bright and welcoming one-bedroom first-floor retirement flat situated within the highly regarded Carrick Gardens development in Ayr. The property enjoys a pleasant outlook over the courtyard and offers spacious, well-balanced accommodation including a comfortable lounge with dining area, neatly maintained kitchen, double bedroom with fitted wardrobes, and a well-kept shower room. Residents benefit from beautifully landscaped gardens, private parking, a secure call-entry system, and on-site management providing reassurance and convenience. Ideally suited to those seeking independent, low-maintenance living within easy reach of Ayr town centre and the seafront.Carrick Gardens is a well-established retirement development located off Carrick Road in Ayr (KA7 2RT), just a short distance from the town centre. The area offers excellent access to a wide range of local amenities including independent shops, cafés, supermarkets, and healthcare services. Ayr seafront, Belleisle Park, and the railway station are all within easy reach, while regular bus services provide convenient links to Prestwick and surrounding areas. This tranquil yet central setting makes Carrick Gardens one of Ayr’s most desirable addresses for retirement living.LoungeDimensions: 13' 6" x 11' 9" (4.12m x 3.58m)Dining RoomDimensions: 10' 6" x 9' 5" (3.21m x 2.87m)KitchenDimensions: 11' 10" x 6' 3" (3.61m x 1.90m)BedroomDimensions: 11' 9" x 10' 10" (3.58m x 3.29m)Shower RoomDimensions: 5' 5" x 7' 3" (1.65m x 2.21m)HallDimensions: 6' 2" x 19' 7" (1.88m x 5.97m)