Tenure: freehold
***CLOSING DATE WEDNESDAY 18TH FEBRUARY AT 3PM***
65b Lamont Drive, Irvine is a spacious 3 bed ground floor flat offered in walk in condition, making it ideal for first time buyers, downsizers or investors. The accommodation includes a generous lounge, three well proportioned bedrooms and a modern kitchen and four piece bathroom, all finished to a high standard and ready to move into. Externally the property benefits from a driveway to the front providing off-street parking, and private rear gardens offering outdoor space for relaxation and entertaining. Situated in a central Irvine location, this flat is within walking distance of the harbourside, town centre amenities, shops and transport links, with local primary and secondary schools nearby for added convenience. Properties on Lamont Drive are popular for practical, everyday living in a well established neighbourhood
Lamont Drive is in Irvine, North Ayrshire, a well established residential area within easy reach of Irvine town centre and harbourside attractions. Irvine offers a range of amenities including shops, cafés, supermarkets and leisure facilities, with convenient transport options including Irvine Railway Station on the Ayrshire Coast Line providing regular services to Glasgow and Ayr. The area also has a good selection of local schools at both primary and secondary levels, making it suitable for families and commuters alike. Irvine’s coastal position provides access to scenic promenades, parks and recreational routes for walking and cycling.
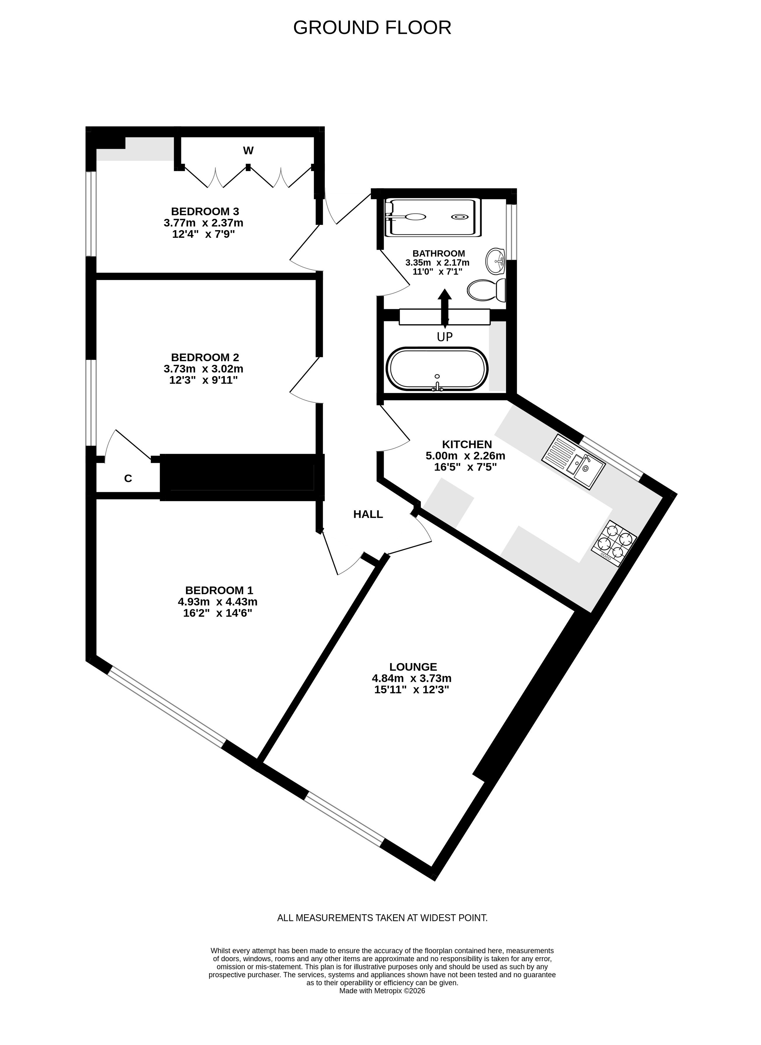
Lounge
Dimensions: 15' 11" x 12' 3" (4.84m x 3.73m)
Kitchen
Dimensions: 7' 5" x 16' 5" (2.26m x 5.00m)
Bedroom 1
Dimensions: 14' 6" x 16' 2" (4.43m x 4.93m)
Bedroom 2
Dimensions: 9' 11" x 12' 3" (3.02m x 3.73m)
Bedroom 3
Dimensions: 7' 9" x 12' 4" (2.37m x 3.77m)
Bathroom
Dimensions: 11' 0" x 7' 1" (3.35m x 2.17m)
Hall
Dimensions: 20' 1" x 5' 4" (6.13m x 1.62m)
Donald Ross Residential are pleased to present to the market Flat C, 221 High Street, Ayr, a spacious two bedroom second floor apartment ideally situated within the heart of Ayr town centre.The accommodation comprises a bright and spacious lounge, fitted kitchen, modern shower room and two well proportioned bedrooms, offering comfortable living space suited to a variety of buyers. The property would benefit from a degree of modernisation, presenting an excellent opportunity for purchasers to upgrade and personalise to their own taste while adding value.Positioned within easy walking distance of Ayr’s extensive range of shops, cafés, restaurants, transport links and the seafront, the property is ideally suited for first-time buyers, downsizers or investors seeking a conveniently located buy-to-let opportunity.With generous room sizes and excellent potential, this apartment offers a fantastic chance to secure a town centre home in a sought-after location.Early viewing is advised to appreciate both the accommodation and opportunity on offer.High Street enjoys a prime town centre location within Ayr, providing immediate access to a wide range of shops, supermarkets, cafés, restaurants and leisure facilities. Ayr railway station and local bus services are within walking distance, offering excellent transport connections to Glasgow and surrounding areas. The town’s popular seafront, promenade and beach are also close by, providing attractive outdoor space and coastal walks. Ayr further benefits from excellent schooling, golf courses and a variety of recreational amenities, making it one of the most desirable towns on the Ayrshire coast.LoungeDimensions: 15' 5" x 12' 8" (4.71m x 3.86m)KitchenDimensions: 8' 4" x 12' 2" (2.54m x 3.71m)Bedroom 1Dimensions: 14' 10" x 10' 6" (4.53m x 3.19m)Bedroom 2Dimensions: 11' 11" x 11' 8" (3.64m x 3.56m)Shower RoomDimensions: 5' 3" x 4' 10" (1.60m x 1.48m)HallDimensions: 18' 6" x 7' 0" (5.65m x 2.13m)VestibuleDimensions: 2' 1" x 4' 0" (0.64m x 1.21m)