Tenure: freehold
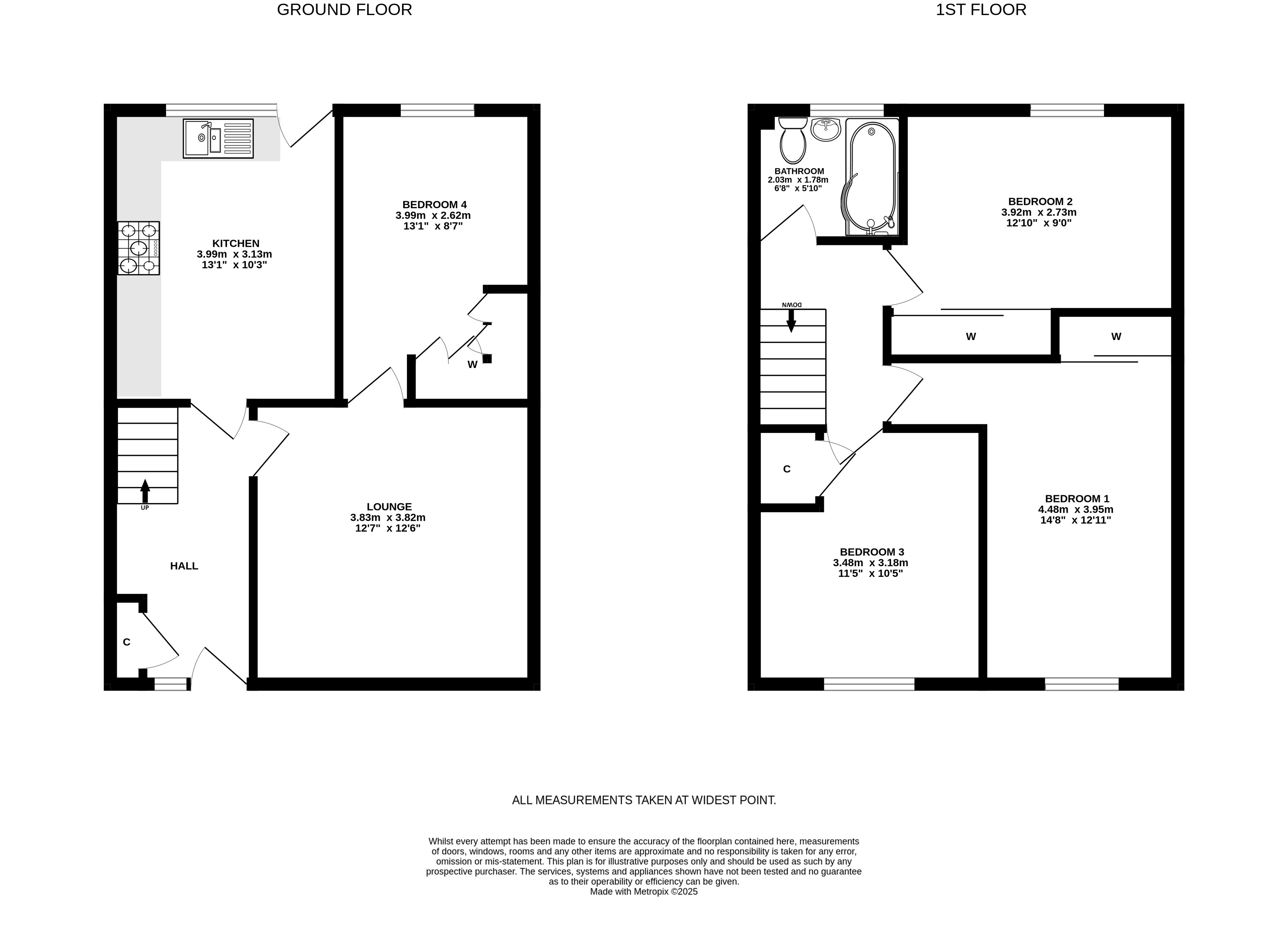
Welcome to 7 Shiel Place, a charming mid-terrace family home in Irvine, offering four bedrooms (one on the ground floor) and well balanced living accommodation. The heart of the house is a modern dining kitchen with integrated appliances, perfect for family mealtimes. Upstairs you’ll find a bright family bathroom and three further bedrooms. The property features both front and rear gardens, ideal for children or summer evenings. On-street parking provides easy access for residents and visitors. Located within walking distance of both primary and secondary schools and close to Irvine town centre, this home offers convenience and comfort.
Situated in the Castlepark area of Irvine, Shiel Place provides quiet residential living with excellent local amenities nearby. The town centre is easily accessible, offering shops, cafés, transport links and services. The coastal town of Irvine lies on the Firth of Clyde and is the administrative centre of North Ayrshire. The area benefits from good schooling at both primary and secondary levels, and superior road/rail connectivity to Glasgow and surrounding Ayrshire towns
Lounge
Dimensions: 12' 7" x 12' 6" (3.83m x 3.82m)
Kitchen
Dimensions: 13' 1" x 10' 3" (3.99m x 3.13m)
Bedroom 4
Dimensions: 13' 1" x 8' 7" (3.99m x 2.62m)
Hall
Dimensions: 12' 6" x 6' 5" (3.82m x 1.95m)
Bedroom 1
Dimensions: 14' 8" x 13' 0" (4.48m x 3.95m)
Bedroom 2
Dimensions: 8' 11" x 12' 10" (2.73m x 3.92m)
Bedroom 3
Dimensions: 11' 5" x 10' 5" (3.48m x 3.18m)
Bathroom
Dimensions: 5' 10" x 6' 8" (1.78m x 2.02m)
Landing
Dimensions: 8' 2" x 6' 2" (2.49m x 1.88m)
***CLOSING DATE FRIDAY 5TH OF DECEMBER AT 11AM***Welcome to 28 Mull Terrace, Broomlands, Irvine, a beautifully extended three-bedroom mid-terrace villa presented in outstanding, show-home condition throughout. The tasteful décor and light-filled rooms combine with a contemporary kitchen and a stylish bathroom. A downstairs garage has been cleverly converted into a third bedroom, offering flexibility and extra space. Outside, the property benefits from a driveway for off-street parking, with beautifully maintained front and rear gardens that provide peaceful outdoor retreats. This well-cared-for home gives you elegant, structured living in a highly desirable neighbourhood.Set in the well-established Broomlands district of Irvine, this property enjoys a peaceful residential location with a community feel. Broomlands lies within North Ayrshire and is part of the wider Irvine locality, combining suburban calm with convenient access to local amenities, schools, and transport. The area benefits from accessible green spaces and footpaths, including links to the Irvine New Town Trail. Road and public transport connections link you easily to the town centre, nearby Dreghorn, and major routes across Ayrshire.LoungeDimensions: 15' 0" x 11' 11" (4.58m x 3.63m)Dining KitchenDimensions: 20' 1" x 8' 5" (6.13m x 2.56m)HallDimensions: 5' 3" x 5' 11" (1.61m x 1.81m)Bedroom 3Dimensions: 15' 3" x 7' 6" (4.66m x 2.28m)VestibuleDimensions: 5' 1" x 8' 8" (1.54m x 2.63m)Bedroom 1Dimensions: 14' 9" x 12' 0" (4.49m x 3.65m)Bedroom 2Dimensions: 13' 5" x 8' 6" (4.09m x 2.58m)BathroomDimensions: 7' 2" x 5' 4" (2.18m x 1.62m)