Tenure: freehold
***CLOSING DATE FRIDAY 14TH OF NOVEMBER AT 11AM***This stunning three bedroom mid terraced villa offers stylish and spacious accommodation throughout. The property comprises a welcoming entrance hallway, bright and spacious lounge with wood burning stove, a modern fitted kitchen and a separate dining room, perfect for entertaining. Upstairs, there are three well-proportioned bedrooms and a sleek family bathroom. Externally, the property enjoys a private rear garden and a garage providing ideal storage. Immaculately presented and move-in ready, this home is perfect for families or couples seeking a high-quality property in a convenient Cumnock location.
Situated within a well-established residential area of Cumnock, 72 Dalgleish Avenue is ideally positioned for easy access to local shops, cafes, and supermarkets, as well as excellent schooling options. The area is well served by public transport links and provides easy access to the A70 for commuters travelling to Ayr, Kilmarnock and beyond. Cumnock also benefits from nearby leisure facilities, scenic countryside walks, and the stunning Dumfries House estate just a short distance away, making it a fantastic setting for families and professionals alike.
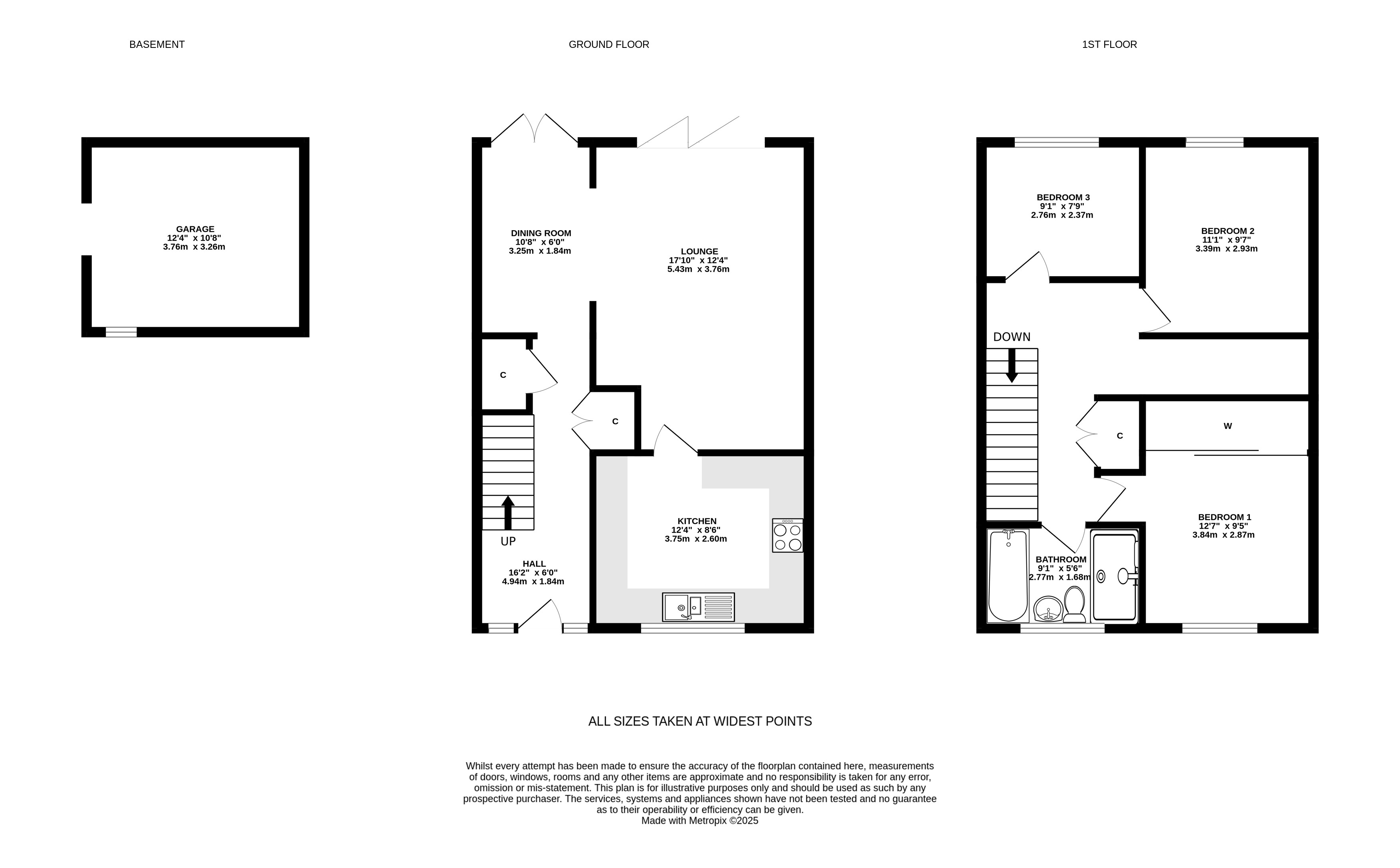
Lounge
Dimensions: 17' 10" x 12' 4" (5.43m x 3.76m)
Dining Room
Dimensions: 10' 8" x 6' 0" (3.25m x 1.84m)
Kitchen
Dimensions: 8' 6" x 12' 4" (2.60m x 3.75m)
Hall
Dimensions: 16' 2" x 6' 0" (4.94m x 1.84m)
Bedroom 1
Dimensions: 9' 5" x 12' 7" (2.87m x 3.84m)
Bedroom 2
Dimensions: 11' 1" x 9' 7" (3.39m x 2.93m)
Bedroom 3
Dimensions: 7' 9" x 9' 1" (2.37m x 2.76m)
Bathroom
Dimensions: 5' 6" x 9' 1" (1.68m x 2.77m)
This property is marketed by
Donald Ross Residential Kilmarnock
***CLOSING DATE FRIDAY 5TH OF DECEMBER AT 11AM***Welcome to 28 Mull Terrace, Broomlands, Irvine, a beautifully extended three-bedroom mid-terrace villa presented in outstanding, show-home condition throughout. The tasteful décor and light-filled rooms combine with a contemporary kitchen and a stylish bathroom. A downstairs garage has been cleverly converted into a third bedroom, offering flexibility and extra space. Outside, the property benefits from a driveway for off-street parking, with beautifully maintained front and rear gardens that provide peaceful outdoor retreats. This well-cared-for home gives you elegant, structured living in a highly desirable neighbourhood.Set in the well-established Broomlands district of Irvine, this property enjoys a peaceful residential location with a community feel. Broomlands lies within North Ayrshire and is part of the wider Irvine locality, combining suburban calm with convenient access to local amenities, schools, and transport. The area benefits from accessible green spaces and footpaths, including links to the Irvine New Town Trail. Road and public transport connections link you easily to the town centre, nearby Dreghorn, and major routes across Ayrshire.LoungeDimensions: 15' 0" x 11' 11" (4.58m x 3.63m)Dining KitchenDimensions: 20' 1" x 8' 5" (6.13m x 2.56m)HallDimensions: 5' 3" x 5' 11" (1.61m x 1.81m)Bedroom 3Dimensions: 15' 3" x 7' 6" (4.66m x 2.28m)VestibuleDimensions: 5' 1" x 8' 8" (1.54m x 2.63m)Bedroom 1Dimensions: 14' 9" x 12' 0" (4.49m x 3.65m)Bedroom 2Dimensions: 13' 5" x 8' 6" (4.09m x 2.58m)BathroomDimensions: 7' 2" x 5' 4" (2.18m x 1.62m)