Tenure: freehold
***CLOSING DATE - WEDNESDAY 5TH NOVEMBER AT 11AM***
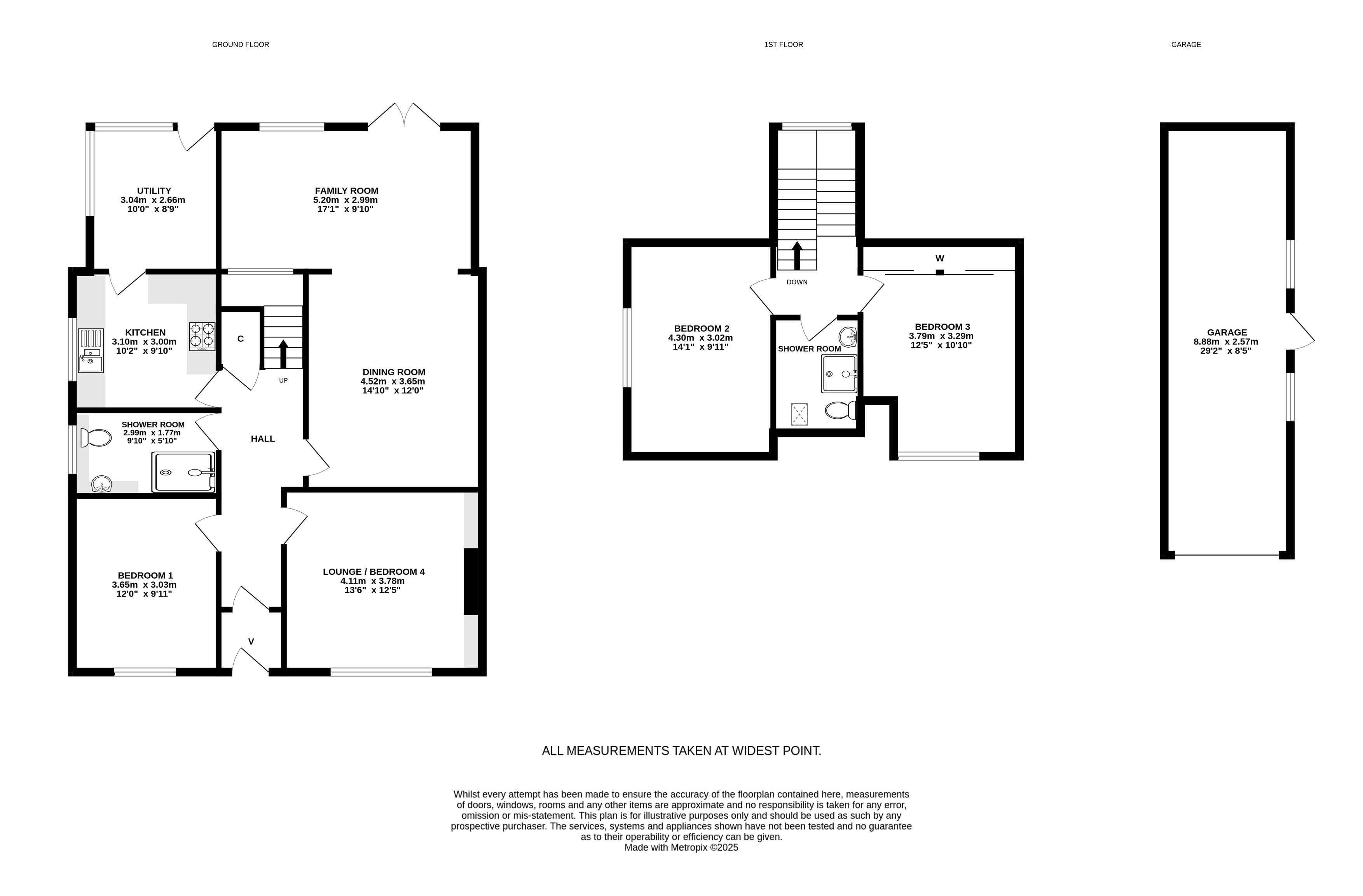
Donald Ross Residential are proud to welcome to the market 9 Hazel Avenue. This extended semi-detached villa offers an exciting opportunity to create a superb family home within one of Kilmarnock’s most sought after residential pockets. Ideally positioned just moments away from Annanhill Primary and Grange Academy, the property provides an excellent layout with a large rear dining/family room, kitchen with utility, two bathrooms and a ground floor bedroom, with the option of an additional lounge or fourth bedroom. Although some cosmetic improvement and plastering work is required, the home benefits from a full rewire, a new boiler and new radiators, offering a strong foundation for further enhancement. Externally, there is a generous multi-car driveway, substantial detached garage and a private, low-maintenance south facing rear garden.
Hazel Avenue is perfectly placed for families, offering convenient access to highly regarded local schooling and excellent commuter links via the M77 to Glasgow and Ayr. The area also provides a range of nearby amenities including supermarkets, cafes and leisure facilities, with both Howard Park and Annanhill Golf Course just a short walk away.
Lounge / Bedroom 4
Dimensions: 12' 5" x 13' 6" (3.78m x 4.11m)
Family Room
Dimensions: 9' 10" x 17' 1" (2.99m x 5.20m)
Dining Room
Dimensions: 14' 10" x 12' 0" (4.52m x 3.65m)
Kitchen
Dimensions: 10' 2" x 9' 10" (3.10m x 3.00m)
Bedroom 1
Dimensions: 12' 0" x 9' 11" (3.65m x 3.03m)
Shower Room
Dimensions: 5' 10" x 9' 10" (1.77m x 2.99m)
Utility Room
Dimensions: 10' 0" x 8' 9" (3.04m x 2.66m)
Hall
Dimensions: 24' 11" x 5' 10" (7.60m x 1.79m)
Landing
Dimensions: 13' 0" x 5' 10" (3.97m x 1.77m)
Bedroom 2
Dimensions: 14' 1" x 9' 11" (4.30m x 3.02m)
Bedroom 3
Dimensions: 15' 9" x 10' 10" (4.79m x 3.29m)
Shower Room
Dimensions: 7' 10" x 5' 10" (2.38m x 1.77m)
This property is marketed by
Donald Ross Residential Kilmarnock
Introducing 5 Orkney Drive, Kilmarnock a modern, extended detached 3-bedroom villa that strikes a superb balance between contemporary comfort and family friendly practicality. The home boasts a bright, modern kitchen perfect for family meals and entertaining, an extension used a dining room, alongside two bathrooms for flexibility and convenience. Generously proportioned rooms and a well thought out layout give plenty of living space, storage and versatility. Outside, a multi car driveway ensures ample off street parking, while the large private rear gardens complete with a brick built summerhouse offer a lovely, private outdoor retreat. Presented in impeccable condition, this villa is ready to welcome its new owners.Orkney Drive sits within the popular residential area of south-west Kilmarnock. The town combines a strong local infrastructure - shops, schools, and leisure amenities - with green space and easy access to roads. Commuters benefit from close road links (including the motorway network) and rail/bus connections from the nearby town centre. Families enjoy access to good schooling options, and the town offers a balanced lifestyle between urban convenience and suburban calm.LoungeDimensions: 15' 7" x 12' 11" (4.76m x 3.93m)Dining KitchenDimensions: 10' 2" x 16' 2" (3.09m x 4.94m)Sun RoomDimensions: 11' 10" x 9' 11" (3.60m x 3.01m)WCDimensions: 5' 10" x 2' 11" (1.78m x 0.89m)Bedroom 1Dimensions: 10' 2" x 9' 9" (3.11m x 2.97m)Bedroom 2Dimensions: 12' 10" x 9' 2" (3.92m x 2.79m)Bedroom 3Dimensions: 10' 0" x 6' 10" (3.04m x 2.08m)Shower RoomDimensions: 6' 4" x 6' 2" (1.93m x 1.88m)