Tenure: freehold
***CLOSING DATE FRIDAY 29TH AUGUST AT 11AM***Donald Ross Residential are delighted to offer to the market this charming three bedroom detached bungalow located within a highly regarded address in Mauchline. Having been maintained to an exceptional standard, the property is presented in true walk-in condition and offers bright, well-balanced accommodation all formed on one level. The layout comprises a welcoming entrance hallway, a spacious lounge with open plan dining area, a modern fitted kitchen, three bedrooms with the third providing direct access to a conservatory, and a stylish shower room. Externally, the property boasts a beautiful private rear garden, a large driveway providing ample off-street parking, and a detached garage. Rarely available in this condition and location, this is a fantastic opportunity for a wide range of buyers.
Connell Crescent sits within a popular and established residential area of Mauchline, a historic Ayrshire town known for its friendly community and strong local amenities. The property is ideally positioned within easy reach of local shops, schools, leisure facilities and transport links. Excellent road connections make for convenient travel to Ayr, Kilmarnock and Glasgow, while the surrounding countryside offers an abundance of outdoor pursuits, providing a great balance of rural living and modern convenience.
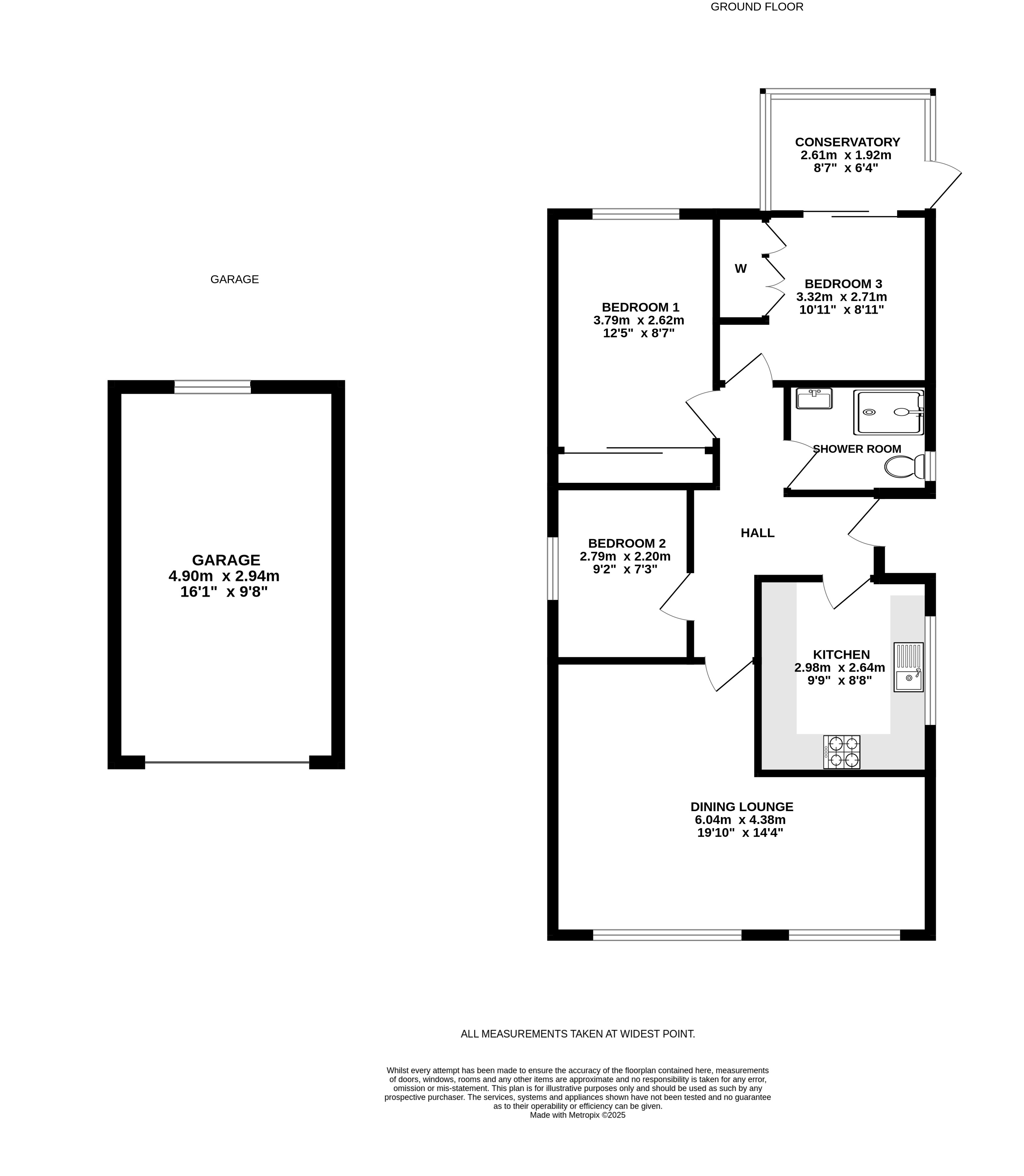
Lounge / Dining Area
Dimensions: 14' 4" x 19' 10" (4.38m x 6.04m)
Kitchen
Dimensions: 9' 9" x 8' 8" (2.98m x 2.64m)
Hall
Dimensions: 14' 11" x 9' 11" (4.56m x 3.03m)
Bedroom 1
Dimensions: 12' 5" x 8' 7" (3.79m x 2.62m)
Bedroom 2
Dimensions: 9' 2" x 7' 3" (2.79m x 2.20m)
Bedroom 3
Dimensions: 8' 11" x 10' 11" (2.71m x 3.32m)
Shower Room
Dimensions: 5' 8" x 7' 6" (1.72m x 2.29m)
Conservatory
Dimensions: 6' 4" x 8' 7" (1.92m x 2.61m)
This property is marketed by
Donald Ross Residential Kilmarnock
Beautifully presented two-bedroom mid-terrace bungalow offering stylish and comfortable single-level living within a quiet and popular residential area of Ayr. The property features a bright bay-windowed lounge, modern fitted kitchen with access to the rear garden, two well-proportioned bedrooms, and a contemporary shower room. Externally, there is a private driveway to the front and a large enclosed rear garden providing excellent space for relaxation and outdoor entertaining. Combining high-quality finishes with a convenient location, this lovely home is perfectly suited to downsizers seeking an easily maintained property close to local amenities.Situated within a peaceful and well-established residential pocket of Ayr, KA8 9AJ, this address provides convenient access to local shops, supermarkets, and public transport, with Ayr town centre, medical facilities, and the seafront just a short drive away. The area is popular with downsizers and retirees for its quiet setting and welcoming community.LoungeDimensions: 15' 9" x 14' 10" (4.81m x 4.51m)KitchenDimensions: 17' 1" x 6' 10" (5.21m x 2.09m)Bedroom 1Dimensions: 13' 1" x 10' 0" (3.98m x 3.04m)Bedroom 2Dimensions: 12' 10" x 7' 0" (3.90m x 2.13m)Shower RoomDimensions: 10' 6" x 2' 9" (3.20m x 0.85m)HallDimensions: 13' 7" x 19' 0" (4.13m x 5.80m)VestibuleDimensions: 3' 4" x 3' 3" (1.01m x 1.00m)