Tenure: freehold
A well-presented one-bedroom ground floor flat situated within the popular Albyn Court development, ideally positioned close to Prestwick town centre and a wide range of local amenities. The accommodation is formed all on the level and comprises a welcoming entrance hall with storage, a bright and spacious lounge, fitted kitchen, double bedroom with fitted wardrobes and a modern shower room. Further benefits include secure entry, well-maintained communal areas and a designated residents’ parking space. Offering comfortable, low-maintenance living, this property will appeal to downsizers, first-time buyers and investors alike.
Kyle Street is centrally located within Prestwick, offering easy access to a wide range of shops, cafés and everyday amenities. Prestwick town centre, seafront and mainline rail station are all within easy reach, providing excellent transport links to Ayr, Glasgow and beyond. The area is well regarded for its convenience, walkability and proximity to local leisure facilities.
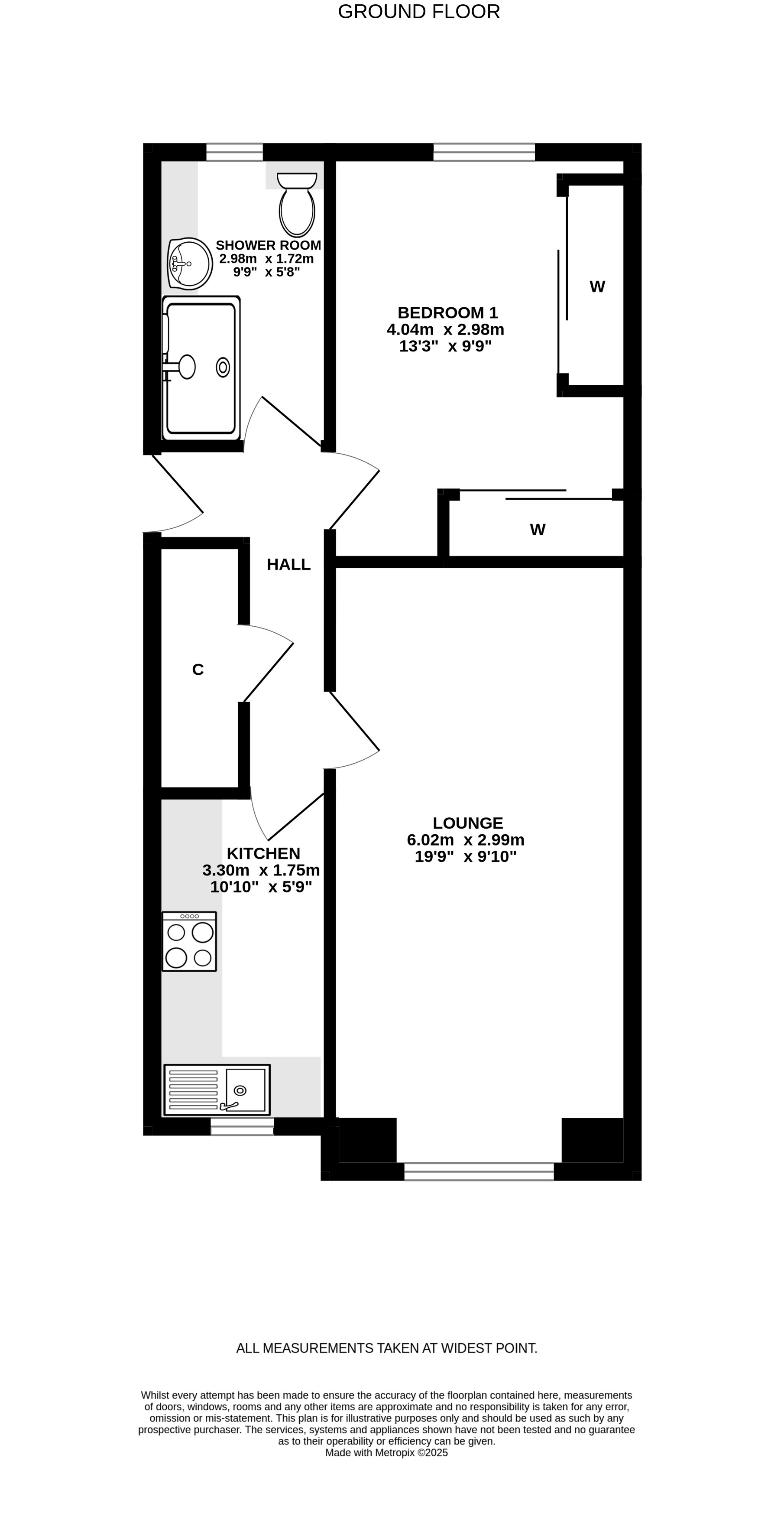
Lounge
Dimensions: 19' 9" x 9' 10" (6.02m x 2.99m)
Kitchen
Dimensions: 10' 10" x 5' 9" (3.30m x 1.75m)
Bedroom 1
Dimensions: 13' 3" x 9' 9" (4.04m x 2.98m)
Shower Room
Dimensions: 9' 9" x 5' 8" (2.98m x 1.72m)
Hall
Dimensions: 11' 3" x 5' 9" (3.42m x 1.74m)
Donald Ross are pleased to present 8 Academy Court, Irvine - a modern 2-bed first-floor flat centrally located in the heart of Irvine town centre. This well-proportioned home offers bright and comfortable open plan living accommodation, including two generous bedrooms, open plan lounge dining area and kitchen, all finished to a good standard and ready to move into. Academy Court sits in a popular residential spot with easy access to shops, cafés, services and transport links, making everyday living effortless. Residents benefit from a secure entry system and communal areas. With its town centre position, this flat is ideal for first-time buyers, professionals or investors seeking a convenient coastal location. Properties in Academy Court have a strong history in the open market, reflecting its desirability and central position in Irvine’s KA12 area.Academy Court is positioned in a central, well-established residential pocket of Irvine, North Ayrshire, offering easy access to the town centre, shops, cafés and transport links including local bus routes and Irvine Railway Station for links to Glasgow, Ayr and beyond. Irvine is a historic coastal town on the Firth of Clyde with a range of everyday amenities, parks and scenic waterfront attractions. The town also has schooling at both primary and secondary levels, making it popular with a wide range of buyers.Dining LoungeDimensions: 24' 2" x 10' 11" (7.36m x 3.32m)KitchenDimensions: 8' 8" x 9' 3" (2.64m x 2.81m)Bedroom 1Dimensions: 11' 7" x 11' 2" (3.54m x 3.41m)Bedroom 2Dimensions: 11' 8" x 9' 3" (3.55m x 2.83m)Shower RoomDimensions: 6' 4" x 7' 5" (1.93m x 2.27m)HallDimensions: 12' 1" x 13' 5" (3.68m x 4.09m)