Tenure: freehold
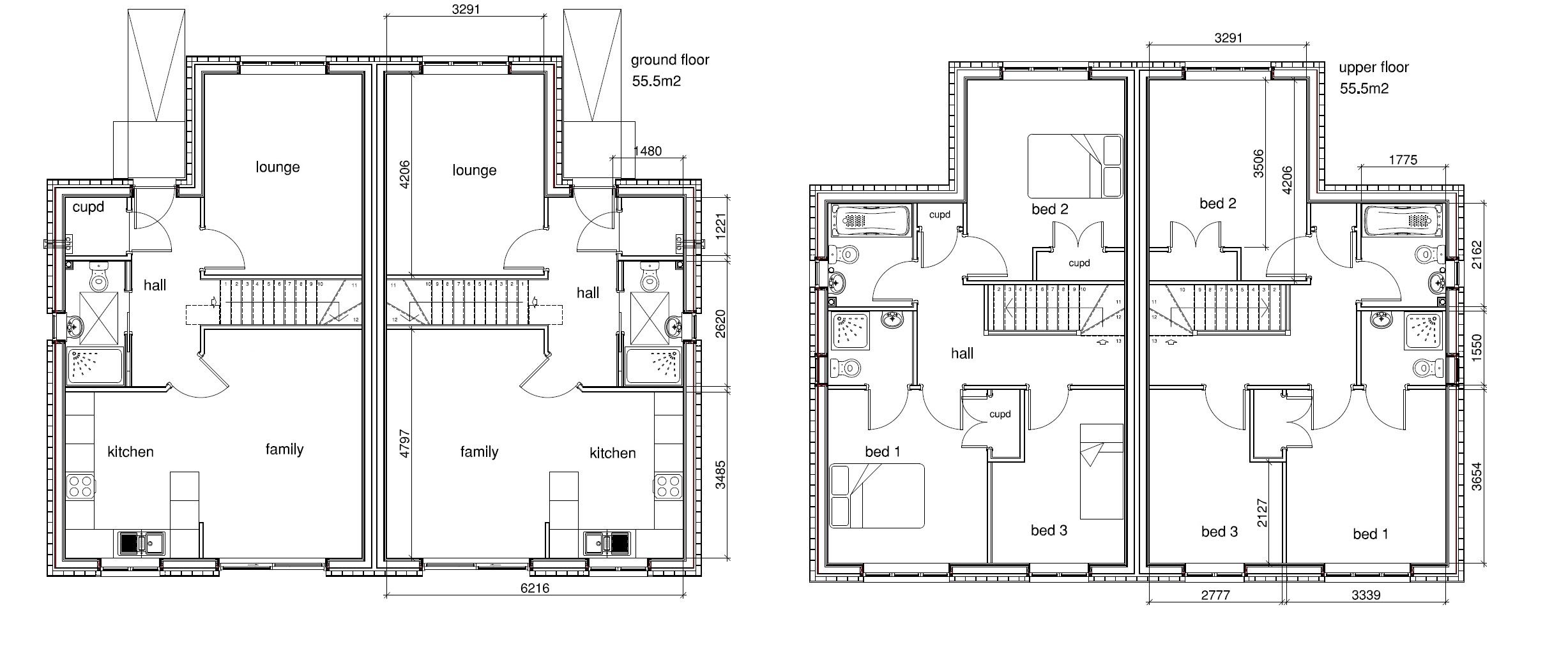
Donald Ross Residential are delighted to present to the market this impressive new-build three-bedroom semi-detached villa, ideally positioned within the popular village of Catrine. For those seeking homes for sale in Catrine, the property offers generously proportioned accommodation extending to approximately 110 sq.m (1,200 sq.ft) and is formed over two levels. The ground floor comprises a welcoming entrance hallway, spacious lounge, ground floor WC with scope to convert to a shower room, and an impressive open-plan dining kitchen and family room. Upstairs, there are three well-proportioned bedrooms, including a principal bedroom with en-suite shower room, along with a well-appointed family bathroom. Externally, the property benefits from private driveway and enclosed garden grounds.
John Street is conveniently located within the heart of Catrine, a well-regarded village offering local amenities, primary schooling and excellent access to surrounding Ayrshire towns. The area is well placed for commuting, with road links to Ayr, Kilmarnock and beyond, while enjoying a pleasant village setting close to countryside walks and the River Ayr.
Lounge
Dimensions: 13' 9" x 10' 6" (4.20m x 3.20m)
Kitchen/Family room
Dimensions: 15' 5" x 20' 4" (4.70m x 6.20m)
Ground Floor WC
Dimensions: 8' 6" x 4' 7" (2.60m x 1.40m)
Bedroom 1
Dimensions: 10' 10" x 11' 10" (3.30m x 3.60m)
En-suite
Dimensions: 4' 11" x 5' 7" (1.50m x 1.70m)
Bedroom 2
Dimensions: 13' 9" x 10' 6" (4.20m x 3.20m)
Bedroom 3
Dimensions: 8' 10" x 6' 11" (2.70m x 2.10m)
Bathroom
Dimensions: 6' 11" x 5' 7" (2.10m x 1.70m)
This property is marketed by
Donald Ross Residential Kilmarnock
A modern three-bedroom semi-detached villa located at 6 Margaret Smith Place, Irvine. The ground floor features a bright lounge and a well-planned dining kitchen, along with a convenient downstairs WC. Upstairs includes 3 generous sized bedrooms and a contemporary family bathroom. The home benefits from private rear gardens and a multi-car driveway. Situated close to Irvine town centre and local amenities, it offers a practical setting for everyday living.Situated in a quiet residential pocket of Irvine, the property offers convenient access to the town centre, retail facilities, schools, leisure options and transport links. Ideal for commuters, with easy reach of major routes and local services.HallDimensions: 11' 9" x 6' 2" (3.59m x 1.87m)LoungeDimensions: 13' 3" x 13' 5" (4.04m x 4.09m)Dining KitchenDimensions: 9' 7" x 17' 0" (2.92m x 5.19m)WCDimensions: 7' 9" x 4' 4" (2.37m x 1.33m)LandingDimensions: 12' 1" x 6' 11" (3.68m x 2.12m)Bedroom 1Dimensions: 11' 3" x 9' 10" (3.42m x 2.99m)Bedroom 2Dimensions: 9' 4" x 9' 10" (2.84m x 2.99m)Bedroom 3Dimensions: 11' 8" x 9' 2" (3.55m x 2.79m)BathroomDimensions: 6' 10" x 6' 11" (2.09m x 2.12m)