This property is being sold as part of a portfolio - A fantastic opportunity for first time buyers, investors, or those looking to downsize, this 1 bedroom first floor flat is located in a quiet residential area of Maybole, with open countryside views to the rear.
The flat offers a blank canvas for those looking to modernise and add value. The internal layout comprises a spacious lounge, fitted kitchen, double bedroom, and a bathroom with three piece suite. While the interior would benefit from cosmetic upgrading, the property is functional and offers excellent potential.
Enjoy the peace and quiet of rural life with beautiful open views, while still being within easy reach of Maybole town centre, local amenities, transport links, and schools. Ideal for buyers seeking an affordable project with scope to personalise.
Outside, the property benefits from a shared garden area to the rear and on street parking to the front.
Early viewing is recommended to appreciate the potential and location on offer.
Situated in the historic town of Maybole, 2D Park View enjoys a peaceful residential setting with stunning countryside views. The town offers a range of local amenities including shops, cafes, schools, and a train station providing direct links to Ayr and Glasgow. Surrounded by scenic rural landscapes and close to the Ayrshire coast, the area is ideal for walking, cycling, and outdoor pursuits. With good road and rail connections, Maybole is a popular choice for commuters and those seeking a quieter lifestyle within reach of larger towns.
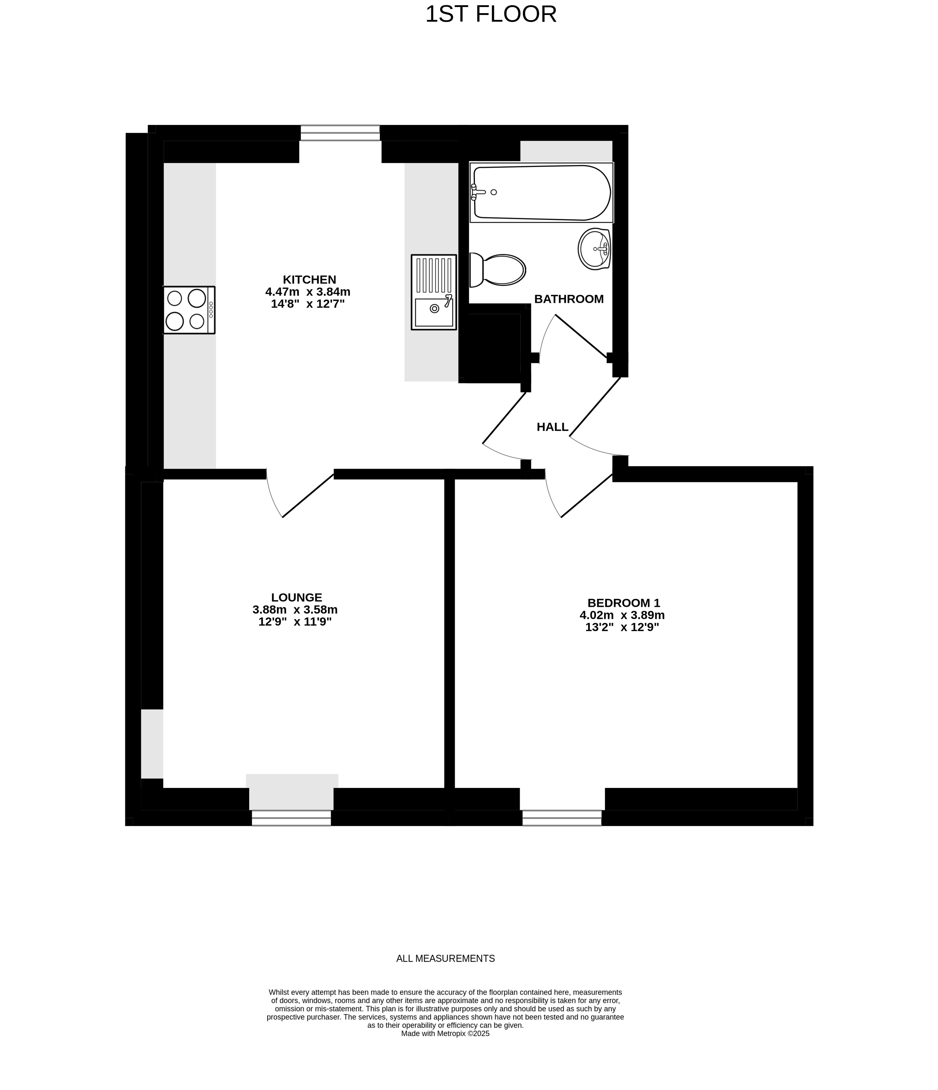
Kitchen
Dimensions: 12' 7" x 14' 8" (3.84m x 4.47m)
Bedroom 1
Dimensions: 12' 9" x 13' 2" (3.89m x 4.02m)
Bathroom
Dimensions: 8' 0" x 5' 10" (2.43m x 1.77m)
Hall
Dimensions: 4' 4" x 3' 8" (1.31m x 1.11m)
Lounge
Dimensions: 12' 9" x 11' 9" (3.88m x 3.58m)
This property is being sold as part of a portfolio - A fantastic opportunity for first time buyers, investors, or those looking to downsize, this 1 bedroom ground floor flat is located in a quiet residential area of Maybole, with open countryside views to the rear.The flat offers a blank canvas for those looking to modernise and add value. The internal layout comprises a spacious lounge, fitted kitchen, double bedroom. While the interior would benefit from cosmetic upgrading, the property is functional and offers excellent potential.Enjoy the peace and quiet of rural life with beautiful open views, while still being within easy reach of Maybole town centre, local amenities, transport links, and schools. Ideal for buyers seeking an affordable project with scope to personalise.Outside, the property benefits from a shared garden area to the rear and on street parking to the front.Early viewing is recommended to appreciate the potential and location on offer.Situated in the historic town of Maybole, 2B Park View enjoys a peaceful residential setting with stunning countryside views. The town offers a range of local amenities including shops, cafes, schools, and a train station providing direct links to Ayr and Glasgow. Surrounded by scenic rural landscapes and close to the Ayrshire coast, the area is ideal for walking, cycling, and outdoor pursuits. With good road and rail connections, Maybole is a popular choice for commuters and those seeking a quieter lifestyle within reach of larger towns.LoungeDimensions: 12' 10" x 15' 7" (3.91m x 4.74m)KitchenDimensions: 12' 8" x 9' 9" (3.86m x 2.97m)Bedroom 1Dimensions: 12' 8" x 11' 7" (3.87m x 3.53m)Shower RoomDimensions: 7' 3" x 4' 6" (2.21m x 1.38m)HallDimensions: 4' 4" x 4' 0" (1.31m x 1.22m)