Tenure: freehold
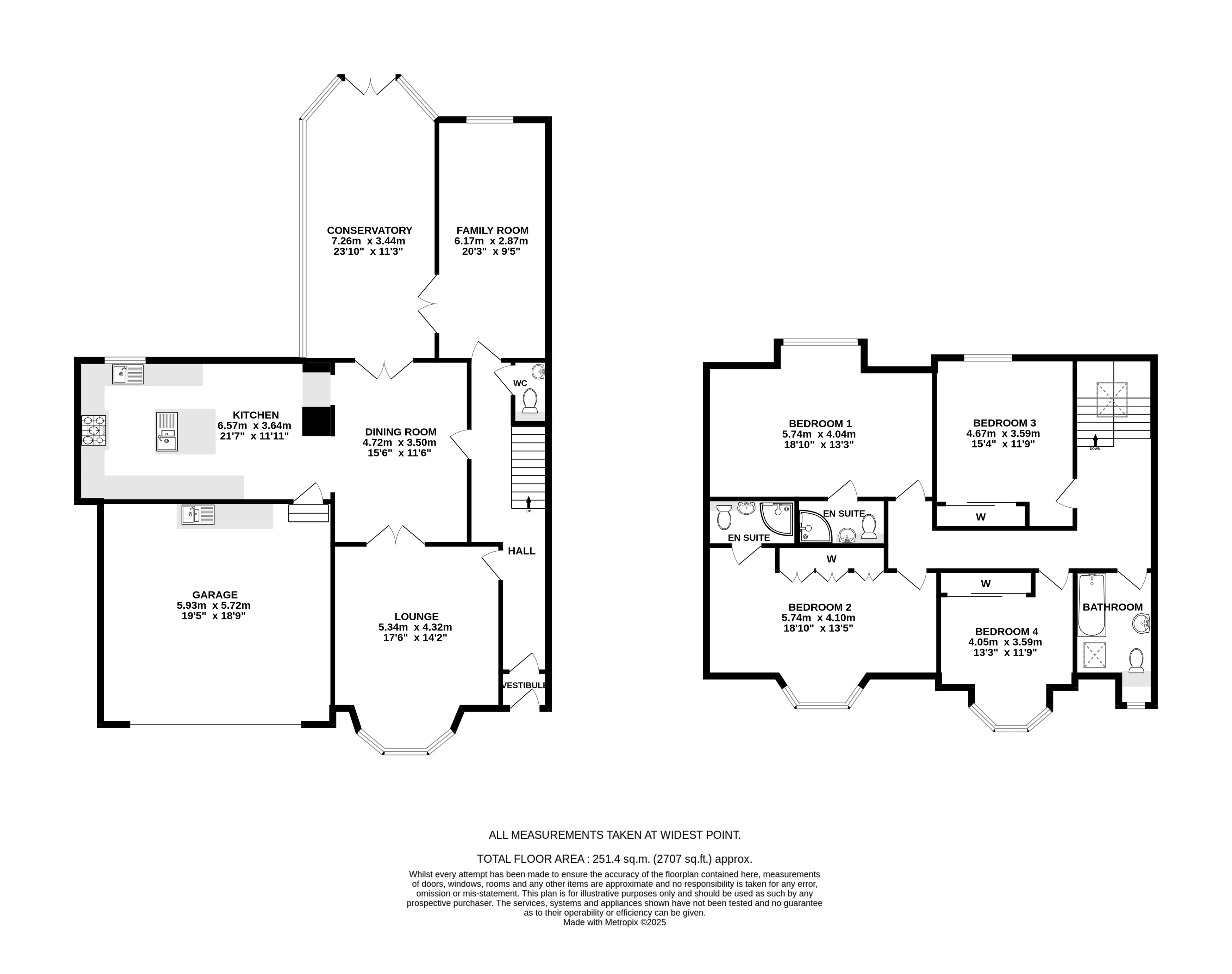
Set within a peaceful riverside location just a short walk from Irvine’s beach, harbourside and train station, 82 Waterside is an impressive four-bedroom end-terraced villa that has been thoughtfully extended to create an outstanding family home. The generous layout includes a bay-windowed lounge, formal dining room, well-appointed dining kitchen, family room and a conservatory opening to the west-facing gardens. Upstairs are four spacious bedrooms, two with en-suite facilities, together with a stylish main bathroom. A large double integral garage and driveway provide excellent parking. This exceptional home combines space, quality and an enviable balance of tranquillity and convenience.
Waterside is a highly regarded riverside address within Irvine, combining peace and privacy with outstanding convenience. The beach, harbourside cafés, railway station and town centre are all within walking distance, while excellent schools and commuter links make this one of the area’s most sought-after residential settings.
Vestibule
Dimensions: 4' 2" x 4' 0" (1.27m x 1.22m)
Hall
Dimensions: 26' 3" x 6' 8" (8.00m x 2.03m)
Lounge
Dimensions: 17' 6" x 14' 2" (5.34m x 4.32m)
Kitchen
Dimensions: 11' 11" x 21' 7" (3.64m x 6.57m)
Dining Room
Dimensions: 15' 6" x 11' 6" (4.72m x 3.50m)
Family Room
Dimensions: 20' 3" x 9' 5" (6.17m x 2.87m)
Conservatory
Dimensions: 23' 10" x 11' 3" (7.26m x 3.44m)
WC
Dimensions: 5' 5" x 3' 0" (1.65m x 0.91m)
Landing
Dimensions: 20' 0" x 24' 7" (6.10m x 7.49m)
Bedroom 1
Dimensions: 13' 3" x 18' 10" (4.04m x 5.74m)
En Suite
Dimensions: 3' 10" x 7' 6" (1.18m x 2.29m)
Bedroom 2
Dimensions: 13' 5" x 18' 10" (4.10m x 5.74m)
En Suite
Dimensions: 3' 10" x 7' 6" (1.18m x 2.29m)
Bedroom 3
Dimensions: 15' 4" x 11' 10" (4.67m x 3.60m)
Bedroom 4
Dimensions: 13' 3" x 11' 9" (4.05m x 3.59m)
Bathroom
Dimensions: 11' 5" x 6' 8" (3.47m x 2.03m)
Situated at the end of a quiet cul-de-sac within one of Cumnock’s most sought after residential addresses, this truly exceptional three bedroom detached villa extends to nearly 3,000 sq ft and offers a rare opportunity to acquire a bespoke home designed and built by the current owners approximately ten years ago. The property provides remarkably spacious and flexible accommodation across two levels with generously proportioned bedrooms, two en-suites and a large family bathroom, making it ideally suited to modern family living. The true centrepiece of the home is the breathtaking open plan dining kitchen, where a dramatic vaulted ceiling and exposed timber roof trusses create an impressive architectural feature, with skylights above flooding the space with natural light and a substantial central island forming the perfect hub for both everyday living and entertaining.Externally the property enjoys a generous low maintenance rear garden with raised decking which takes full advantage of the elevated position, capturing far reaching views across the surrounding hills and countryside. To the front there is a substantial monoblock driveway providing ample off street parking along with a large detached garage, completing this unique home which offers an outstanding balance of space, design and location within easy reach of local amenities, transport links and schooling. For those seeking properties for sale in Cumnock, this is a truly exceptional home.Kyle Court is one of Cumnock’s most desirable residential addresses, positioned within a peaceful cul-de-sac setting while remaining conveniently close to the town centre. Cumnock offers a wide range of local amenities including supermarkets, independent shops, cafes and leisure facilities, along with well regarded primary and secondary schooling nearby. The area also benefits from convenient transport links connecting to Ayr, Kilmarnock and the wider Ayrshire region, making it an excellent location for those seeking a quiet residential setting without sacrificing access to everyday amenities and commuter routes.KitchenDimensions: 22' 10" x 16' 0" (6.96m x 4.87m)Family RoomDimensions: 16' 6" x 16' 4" (5.02m x 4.99m)Dining RoomDimensions: 12' 3" x 16' 2" (3.73m x 4.93m)LoungeDimensions: 18' 8" x 16' 4" (5.68m x 4.99m)Entrance HallDimensions: 17' 1" x 12' 9" (5.20m x 3.89m)LandingDimensions: 7' 10" x 16' 0" (2.38m x 4.87m)Bedroom 1Dimensions: 24' 11" x 22' 7" (7.59m x 6.89m)En suiteDimensions: 9' 5" x 5' 10" (2.87m x 1.79m)Bedroom 2Dimensions: 17' 7" x 13' 8" (5.36m x 4.17m)En suiteDimensions: 13' 10" x 5' 8" (4.22m x 1.73m)Bedroom 3Dimensions: 15' 10" x 15' 1" (4.83m x 4.61m)BathroomDimensions: 10' 9" x 10' 0" (3.28m x 3.06m)