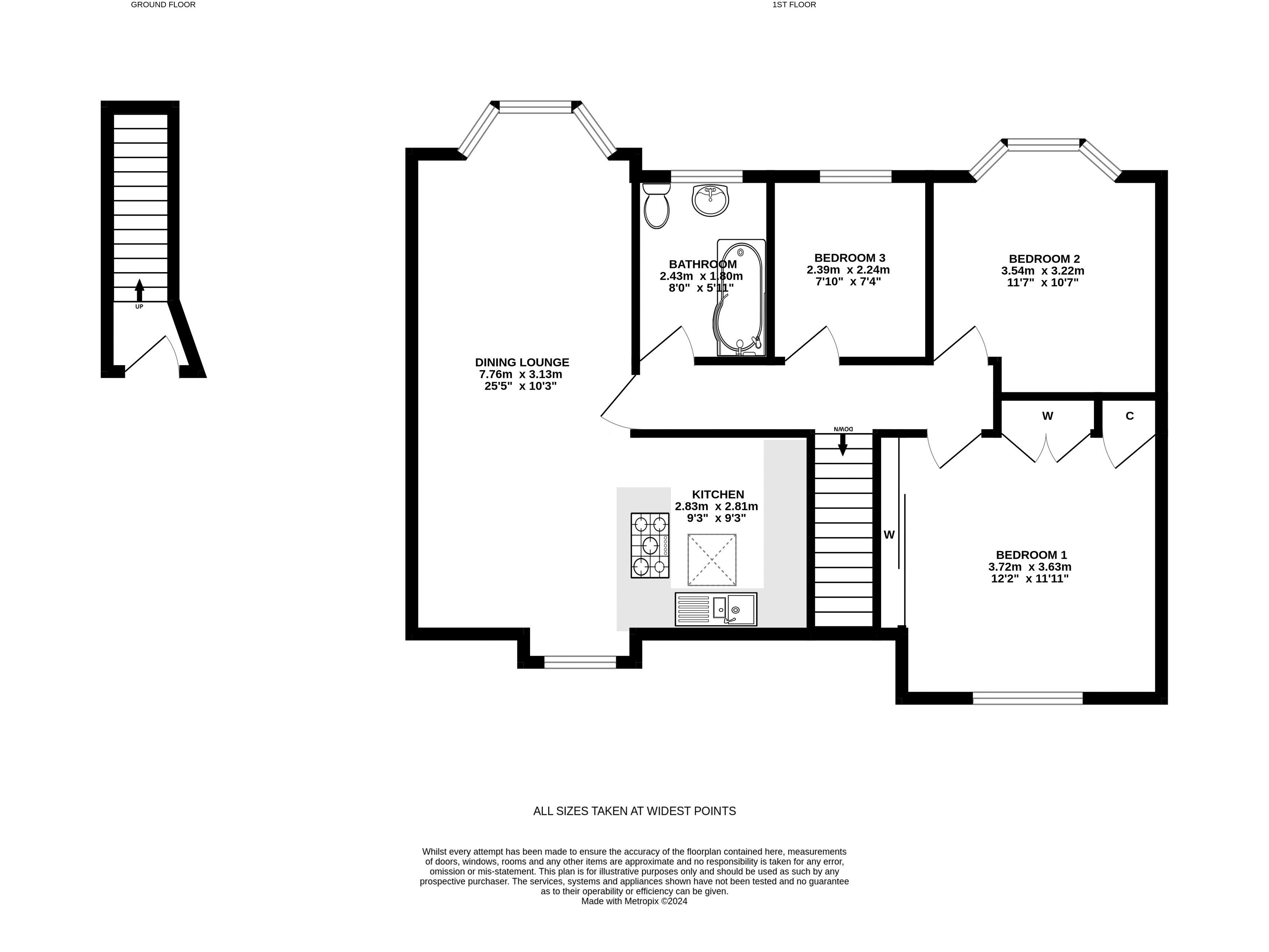
Donald Ross are delighted to present to the market this stunning three bedroom first floor apartment with stunning views of Seamill beach across to the Isle of Arran. This property is in show home condition with open plan lounge, kitchen and dining area. Ideal for a small family or someone looking to downsize. Walking distance to West Kilbride town centre and local primary school.Dining Lounge
Kitchen
Bedroom 1
Bedroom 2
Bedroom 3
Bathroom
A spacious and well-presented two-bedroom ground floor flat located in a desirable seaside position within the popular Glenford Place development. The property features a bright lounge with French doors opening onto a private balcony enjoying sea views, alongside a well-appointed dining kitchen offering excellent storage and worktop space. Two generous bedrooms include a principal bedroom with en-suite shower room, complemented by a separate family bathroom. Externally, the home benefits from allocated parking and secure entry to the communal entrance hall. Ideally suited to downsizers seeking all on the level living in a scenic coastal setting, this is an exceptional opportunity just moments from Ayr’s beachfront and town centre.Positioned in a highly convenient seaside location, Glenford Place offers easy access to Ayr’s beachfront, coastal walks, supermarkets, public transport and the town centre. Ayr railway station is within reach, while surrounding road links provide excellent connectivity across Ayrshire. A well-placed setting ideal for day-to-day living and coastal lifestyle.LoungeDimensions: 19' 2" x 15' 5" (5.83m x 4.69m)KitchenDimensions: 19' 3" x 8' 1" (5.86m x 2.47m)Bedroom 1Dimensions: 13' 1" x 10' 6" (3.98m x 3.19m)En SuiteDimensions: 7' 7" x 4' 10" (2.30m x 1.47m)Bedroom 2Dimensions: 8' 11" x 13' 3" (2.71m x 4.03m)BathroomDimensions: 7' 6" x 6' 4" (2.29m x 1.93m)HallDimensions: 7' 5" x 13' 3" (2.26m x 4.05m)