Tenure: freehold
The Turnberry Lodge is a well-proportioned three-bedroom lodge with refreshed interiors and upgraded finishes, ideal for couples or small families seeking comfortable, practical accommodation. Located within Brunston Country Retreat, owners enjoy freehold lodge ownership across a peaceful 25-acre landscaped estate in the heart of South Ayrshire, with 365-day usage and prices from £64,000. Set within a tranquil valley of rolling hills and mature woodland, Brunston offers a relaxed countryside lifestyle complemented by on-site leisure facilities including a swimming pool. Equally appealing as a personal retreat or investment, the lodge also presents a buy-to-let opportunity with potential net rental returns of up to £23,864 per annum.
Brunston Country Retreat offers freehold lodge ownership within a peaceful, landscaped twenty-five-acre countryside estate in the heart of South Ayrshire. With 365-day usage and prices from £64,000, it provides a relaxed setting designed for repeat visits, long-term enjoyment and flexible ownership.
Set within a tranquil valley surrounded by rolling hills and mature woodland, Brunston combines rural calm with on-site leisure facilities, including a swimming pool and much more. Alongside lifestyle appeal, owners can benefit from a buy-to-let opportunity with net rental returns of up to £32,791 per year, making Brunston equally attractive as a countryside retreat or a considered investment.
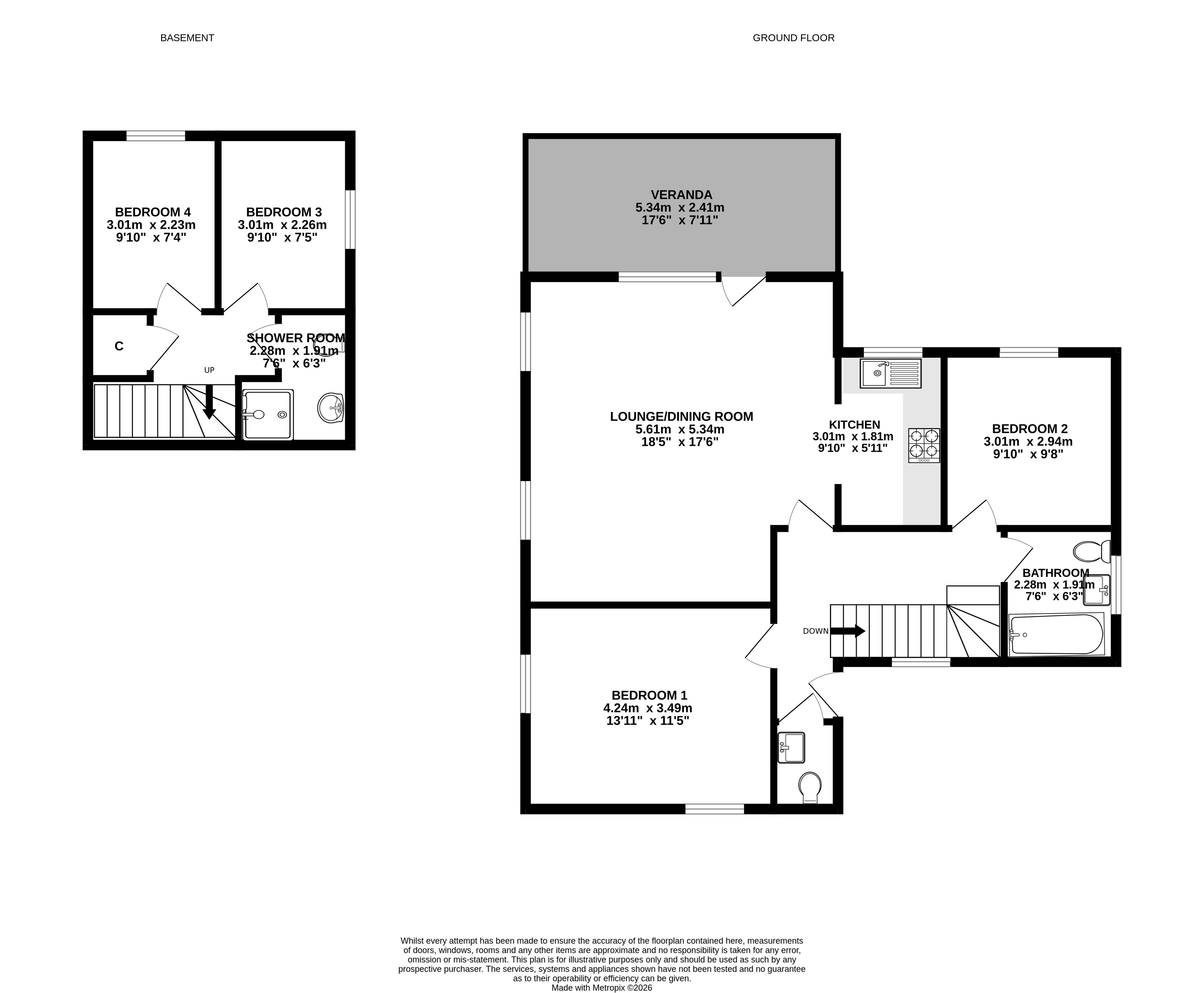
Lounge/Dining room
Dimensions: 17' 5" x 18' 4" (5.30m x 5.60m)
Kitchen
Dimensions: 10' 10" x 6' 3" (3.30m x 1.90m)
Bedroom 1
Dimensions: 10' 10" x 13' 9" (3.30m x 4.20m)
Bedroom 2
Dimensions: 9' 10" x 9' 6" (3.00m x 2.90m)
Bedroom 3
Dimensions: 9' 10" x 7' 7" (3.00m x 2.30m)
Bedroom 4
Dimensions: 9' 10" x 7' 3" (3.00m x 2.20m)
Bathroom
Dimensions: 7' 7" x 5' 7" (2.30m x 1.70m)
Shower room
Dimensions: 7' 3" x 6' 3" (2.20m x 1.90m)
The Brunston Lodge is a well-proportioned three-bedroom lodge with refreshed interiors and upgraded finishes, ideal for couples or small families seeking comfortable, practical accommodation. Located within Brunston Country Retreat, owners enjoy freehold lodge ownership across a peaceful 25-acre landscaped estate in the heart of South Ayrshire, with 365-day usage and prices from £64,000. Set within a tranquil valley of rolling hills and mature woodland, Brunston offers a relaxed countryside lifestyle complemented by on-site leisure facilities including a swimming pool. Equally appealing as a personal retreat or investment, the lodge also presents a buy-to-let opportunity with potential net rental returns of up to £20,630 per annum.Brunston Country Retreat offers freehold lodge ownership within a peaceful, landscaped twenty-five-acre countryside estate in the heart of South Ayrshire. With 365-day usage and prices from £64,000, it provides a relaxed setting designed for repeat visits, long-term enjoyment and flexible ownership. Set within a tranquil valley surrounded by rolling hills and mature woodland, Brunston combines rural calm with on-site leisure facilities, including a swimming pool and much more. Alongside lifestyle appeal, owners can benefit from a buy-to-let opportunity with net rental returns of up to £32,791 per year, making Brunston equally attractive as a countryside retreat or a considered investment.Lounge/Dining roomDimensions: 16' 9" x 13' 1" (5.10m x 4.00m)KitchenDimensions: 10' 10" x 6' 3" (3.30m x 1.90m)Bedroom 1Dimensions: 10' 10" x 9' 10" (3.30m x 3.00m)Bedroom 2Dimensions: 13' 9" x 7' 7" (4.20m x 2.30m)Bedroom 3Dimensions: 13' 9" x 7' 7" (4.20m x 2.30m)BathroomDimensions: 7' 7" x 5' 7" (2.30m x 1.70m)